8#D户型-6室2厅4卫1厨建筑面积269.68平米

待定

6室2厅1厨4卫

待定

暂无

暂无

269.68 m²

暂无

少量

户型品鉴

各个空间户型方正,后期空间利用率高;全明通透户型,每一个空间都带有窗户,保证后期居住时能够充分采光和透气,保证空气能够流通起来,空气质量较好;采光较好,保证居住舒适度。每层带有阳台,景观视野宽阔。卧室自带卫生间,私密性好。

8#C户型-3室2厅2卫1厨建筑面积158.97平米

待定

3室2厅1厨2卫

待定

暂无

暂无

158.97 m²

暂无

少量

户型品鉴

整体户型方正,活动区域开阔,居住舒适度高;全明通透的户型,居住舒适度较高。整个空间有充足的采光。带有阳台,景观视野性开阔。卧室自带卫生间,私密性较好。卫生间门朝向主要活动区域,私密性一般;

5#D户型-5室3厅3卫1厨建筑面积238.83平米

待定

5室3厅1厨3卫

待定

暂无

暂无

238.83 m²

暂无

少量

户型品鉴

整个空间方正,拐角少,后期利用难度低。每层带有景观阳台,景观视野宽阔。卫生间没有对外窗户;

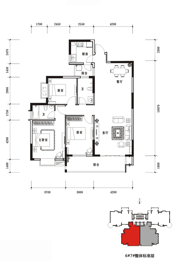
6#7#B户型-3室2厅2卫1厨建筑面积129.78平米

待定

3室2厅1厨2卫

待定

暂无

暂无

129.78 m²

暂无

少量

户型品鉴

整体户型方正,活动区域开阔,居住舒适度高;整个空间全明通透,采光良好,同时利于居住空间通风;带双阳台,景观视野宽阔。主卧自带卫生间,私密性好。

8#B户型-3室2厅2卫1厨建筑面积145.86平米

待定

3室2厅1厨2卫

待定

暂无

暂无

145.86 m²

暂无

少量

户型品鉴

整体户型方正,活动区域开阔,居住舒适度高;全明通透户型,每一个空间都带有窗户,保证后期居住时能够充分采光和透气;保证空气能够流通起来,空气质量较好;采光较好,保证居住舒适度。每层带有阳台,景观视野开阔。卧室自带卫生间,私密性好。下层卫生间朝向卧室,产生的气味对卧室有影响。

我要咨询

一键领取最新楼盘信息!

订阅后金牌置业顾问将主动致电联系您并提供专业咨询服务,来电时您的真实号码将被隐藏

图片验证码