一期1#楼C户型-5室2厅2卫1厨建筑面积212.33平米

待定

5室2厅1厨2卫

待定

暂无

暂无

212.33 m²

暂无

少量

户型品鉴

各个空间户型方正,方便室内家具布置;全明通透户型,居住舒适度较高,整个空间采光充足,利于后期居住;次卧去卫生间要传堂入室,整个动线过长,使用起来不方便。主卧室门朝向客厅或餐厅;卫生间对着客厅也不太好,有种不太礼貌的感觉。如此感觉户型设计上有硬伤。各个功能区的尺寸比例规范,布局合理,能很好地满足日常功

一期1#楼D户型-3室2厅2卫1厨建筑面积126.35平米

待定

3室2厅1厨2卫

待定

暂无

暂无

126.35 m²

暂无

少量

户型品鉴

各个空间户型方正,方便室内家具布置;整个空间全明通透,采光良好,同时利于居住空间通风;主卧门朝向比较吵闹的区域,不利于主人休息。各个功能区的尺寸比例规范,布局合理,能很好地满足日常功能需求,整体空间开阔,采光充足,居住舒适度好;厨房带有生活阳台以及拥有一个大的观景阳台,视野采光通风性佳。

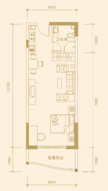
一期2#E户型-1室1厅1卫1厨建筑面积60.72平米

待定

1室1厅1厨1卫

待定

暂无

暂无

60.72 m²

暂无

少量

户型品鉴

各个空间户型方正,方便室内家具布置;全明通透户型,居住舒适度较高,整个空间采光充足,利于后期居住;卧室进卫生间需要穿过餐厅或客厅;卧室门朝向客厅或餐厅;卫生间门朝向主要活动区域,私密性一般;客厅、卧室、卫生间和厨房等主要功能间的尺寸以及比例适中,有利于采光和通风,居住起来舒适、方便;

一期2#D户型-2室2厅1卫1厨建筑面积88.68平米

待定

2室2厅1厨1卫

待定

暂无

暂无

88.68 m²

暂无

少量

户型品鉴

各个空间户型方正,后期空间利用率高;全明户型,各部分空间均有窗,可保证整体空间采光和通风,居住舒适度好;整个户型空间布局合理,做到了干湿分离、动静分离,方便后期生活;卧室厨卫等各个功能区的面积大小都比较合理,居住体验便利,整体舒适度高;

一期2#C户型-2室2厅1卫1厨建筑面积97.30平米

待定

2室2厅1厨1卫

待定

暂无

暂无

97.3 m²

暂无

少量

户型品鉴

整体户型方正,活动区域开阔,居住舒适度高;全明通透户型,居住舒适度较高,整个空间采光充足,利于后期居住;卧室进卫生间需要穿过餐厅或客厅;卧室作为休息区域,门朝向客厅或餐厅时,私密性一般;卫生间朝向客厅私密性较差。客厅、卧室、卫生间和厨房等主要功能间的尺寸以及比例适中,有利于采光和通风,居住起来舒适、

一期2#B户型-2室2厅1卫1厨建筑面积88.67平米

待定

2室2厅1厨1卫

待定

暂无

暂无

88.67 m²

暂无

少量

户型品鉴

各个空间户型方正,方便室内家具布置;客厅、主卧非南向或东向,居室采光一般;整体空间布局合理,能够保证动静分离和居室通风,方便使用;卧室厨卫等各个功能区的面积大小都比较合理,居住体验便利,整体舒适度高;公摊低于15%,得房率较高。

一期2#A户型-3室2厅2卫1厨建筑面积145.41平米

待定

3室2厅1厨2卫

待定

暂无

暂无

145.41 m²

暂无

少量

户型品鉴

各个空间户型方正,后期空间利用率高;整个空间全明通透,采光良好,同时利于居住空间通风;卧室作为休息区域,门朝向客厅或餐厅时,私密性一般;卫生间门朝向主要活动区域,私密性一般;客厅、卧室、卫生间和厨房等主要功能间的尺寸以及比例适中,有利于采光和通风,居住起来舒适、方便;主卧带有卫生间,保障了主人家的私

一期1#、2#E户型-3室2厅2卫1厨建筑面积128.73平米

待定

3室2厅1厨2卫

待定

暂无

暂无

128.73 m²

暂无

少量

户型品鉴

整体户型方正,活动区域开阔,居住舒适度高;全明户型,各部分空间均有窗,可保证整体空间采光和通风,居住舒适度好;主卧带有卫生间,保障主人家隐私;客卫在公共位置,要路过客厅不是很方便。次卧门朝向客厅,外人可以一目了然的看到卧室,私密性较差。各个功能区的尺寸比例规范,布局合理,能很好地满足日常功能需求,整

一期1#、2#G户型-3室2厅2卫1厨建筑面积140.98平米

待定

3室2厅1厨2卫

待定

暂无

暂无

140.98 m²

暂无

少量

户型品鉴

各个空间户型方正,方便室内家具布置;整个空间全明通透,采光良好,同时利于居住空间通风;次卧去卫生间要传堂入室,整个动线过长,使用起来不方便。次卧门朝向客厅,外人可以一目了然的看到卧室,私密性较差。卫生间朝向餐厅产生的气味及细菌对餐厅影响较大。卧室厨卫等各个功能区的面积大小都比较合理,居住体验便利,整

一期2#F户型-1室1厅1卫1厨建筑面积54.54平米

待定

1室1厅1厨1卫

待定

暂无

暂无

54.54 m²

暂无

少量

户型品鉴

整体户型方正,活动区域开阔,居住舒适度高;比较重要的空间无对外窗户;卫生间门朝向厨房,导致区域空气不好,舒适度差。客厅、卧室、卫生间和厨房等主要功能间的尺寸以及比例适中,有利于采光和通风,居住起来舒适、方便;公摊低于15%,得房率较高。

一期1#楼B户型-3室2厅2卫1厨建筑面积143.81平米

待定

3室2厅1厨2卫

待定

暂无

暂无

143.81 m²

暂无

少量

户型品鉴

整体户型方正,活动区域开阔,居住舒适度高;全明通透户型,居住舒适度较高,整个空间采光充足,利于后期居住;卧室门朝向客厅或餐厅;卧室厨卫等各个功能区的面积大小都比较合理,居住体验便利,整体舒适度高;拥有一个270°观景阳台,视野采光通风性佳。

一期1#、2#F户型-2室2厅1卫1厨建筑面积85.72平米

待定

2室2厅1厨1卫

待定

暂无

暂无

85.72 m²

暂无

少量

户型品鉴

各个空间户型方正,后期空间利用率高;全明户型,各部分空间均有窗,可保证整体空间采光和通风,居住舒适度好;卫生间朝向卧室,产生的气味对卧室有影响。各个功能区的尺寸比例规范,布局合理,能很好地满足日常功能需求,整体空间开阔,采光充足,居住舒适度好;

我要咨询

一键领取最新楼盘信息!

订阅后金牌置业顾问将主动致电联系您并提供专业咨询服务,来电时您的真实号码将被隐藏

图片验证码