A4A5B4B5户型二层平面图-A4A5B4B5户型二层平面图-4室0厅1卫0厨建筑面积503.90

待定

4室0厅0厨1卫

待定

暂无

暂无

503.9 m²

暂无

未知

户型品鉴

暂无

A8B8户型一层平面图-6室3厅4卫1厨建筑面积534.09平米

待定

6室3厅1厨4卫

待定

暂无

暂无

534.09 m²

暂无

未知

户型品鉴

各个空间户型方正,方便室内家具布置;全明通透的户型,舒适度较高。整个空间有充足的采光,这一点对于后期居住,尤其重要。整个户型空间布局合理,做到了干湿分离、动静分离,方便后期生活;

A1B1户型一层平面图-3室0厅0卫0厨建筑面积534.09平米

待定

3室0厅0厨0卫

待定

暂无

暂无

534.09 m²

暂无

未知

户型品鉴

各个空间户型方正,后期空间利用率高;全明户型,每一个空间都带有窗户,保证后期能够充分采光和透气;通透户型,保证空气能够流通起来,空气质量较好;采光较好。各个功能区间面积大小都比较合理,后期使用起来比较方便。

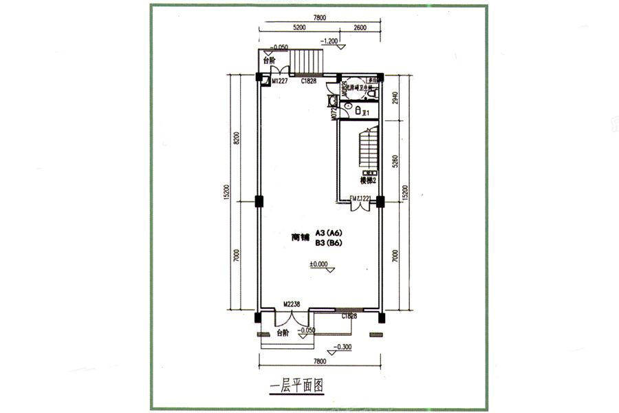
A3A6B3B6户型一层平面图-4室0厅1卫0厨建筑面积488.12平米

待定

4室0厅0厨1卫

待定

暂无

暂无

488.12 m²

暂无

未知

户型品鉴

整体户型方正,活动区域开阔,居住舒适度高;全明户型,每一个空间都带有窗户,保证后期居住时能够充分采光和透气;通透户型,保证空气能够流通起来,空气质量较好;采光较好。整个户型空间布局合理,做到了干湿分离、动静分离,方便后期生活;

A2A7B2B7户型一层平面图-4室0厅1卫0厨建筑面积503.90平米

待定

4室0厅0厨1卫

待定

暂无

暂无

503.9 m²

暂无

未知

户型品鉴

各个空间户型方正,方便室内家具布置;全明户型,各部分空间均有窗,可保证整体空间采光和通风,居住舒适度好;

我要咨询

一键领取最新楼盘信息!

订阅后金牌置业顾问将主动致电联系您并提供专业咨询服务,来电时您的真实号码将被隐藏

图片验证码