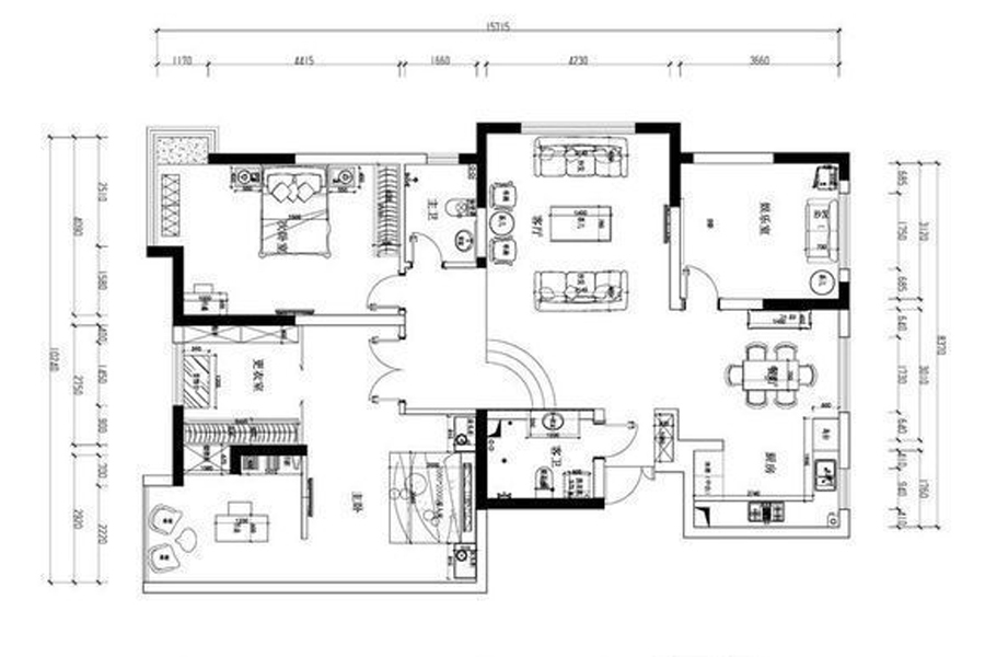
A户型-4室2厅2卫1厨建筑面积467.00平米

待定

4室2厅1厨2卫

待定

暂无

暂无

467 m²

暂无

售罄

户型品鉴

各个空间户型方正,方便室内家具布置;卫生间没有对外窗户;整个户型空间布局合理,做到了干湿分离、动静分离,方便后期生活;客厅、卧室、卫生间和厨房等主要功能间的尺寸以及比例适中,有利于采光和通风,居住起来舒适、方便;公摊高于15%且低于25%,符合住宅公摊正常范围。

我要咨询

一键领取最新楼盘信息!

订阅后金牌置业顾问将主动致电联系您并提供专业咨询服务,来电时您的真实号码将被隐藏

图片验证码