西区D-NL2户型-4室2厅6卫1厨建筑面积477.00平米

待定

4室2厅1厨6卫

待定

暂无

暂无

477 m²

暂无

少量

户型品鉴

各个空间方正,后期 高。全明户型,各部分空间均有窗,可保证整体空间采光和通风,居住舒适度好;整体空间布局合理,能够保证动静分离和居室通风,方便使用;卧室厨卫等各个功能区的面积大小都比较合理,居住体验便利,整体舒适度高;

西区D-NL1户型-地上二层-4室2厅6卫1厨建筑面积500.00平米

待定

4室2厅1厨6卫

待定

暂无

暂无

500 m²

暂无

少量

户型品鉴

各个空间户型方正,方便室内家具布置;全明通透户型,居住舒适度较高,整个空间采光充足,利于后期居住;居室布局合理,通风良好,动静分离,兼顾到了卧室和卫生间的私密性;各个功能区的尺寸比例规范,布局合理,能很好地满足日常功能需求,整体空间开阔,采光充足,居住舒适度好;

西区D-N2户型-地上二层-4室2厅7卫1厨建筑面积423.00平米

待定

4室2厅1厨7卫

待定

暂无

暂无

423 m²

暂无

少量

户型品鉴

整体户型方正,活动区域开阔,居住舒适度高;全明户型,各部分空间均有窗,可保证整体空间采光和通风,居住舒适度好;居室布局合理,通风良好,动静分离,兼顾到了卧室和卫生间的私密性;各个功能区的尺寸比例规范,布局合理,能很好地满足日常功能需求,整体空间开阔,采光充足,居住舒适度好;

西区D-NL3户型-地上二层-4室2厅6卫1厨建筑面积481.00平米

待定

4室2厅1厨6卫

待定

暂无

暂无

481 m²

暂无

少量

户型品鉴

各个空间户型方正,后期空间利用率高;全明通透户型,居住舒适度较高,整个空间采光充足,利于后期居住;整个户型空间布局合理,做到了干湿分离、动静分离,方便后期生活;客厅、卧室、卫生间和厨房等主要功能间的尺寸以及比例适中,有利于采光和通风,居住起来舒适、方便;

悦樽S户型-5室2厅4卫1厨建筑面积576.00平米

待定

5室2厅1厨4卫

待定

暂无

暂无

576 m²

暂无

少量

户型品鉴

各个空间方正,后期 高。全明户型,各部分空间均有窗,可保证整体空间采光和通风,居住舒适度好;整体空间布局合理,能够保证动静分离和居室通风,方便使用;各个功能区的尺寸比例规范,布局合理,能很好地满足日常功能需求,整体空间开阔,采光充足,居住舒适度好;

西区D-N3户型-地上二层-4室2厅6卫1厨建筑面积449.00平米

待定

4室2厅1厨6卫

待定

暂无

暂无

449 m²

暂无

少量

户型品鉴

整体户型方正,活动区域开阔,居住舒适度高;全明户型,各部分空间均有窗,可保证整体空间采光和通风,居住舒适度好;居室布局合理,通风良好,动静分离,兼顾到了卧室和卫生间的私密性;客厅、卧室、卫生间和厨房等主要功能间的尺寸以及比例适中,有利于采光和通风,居住起来舒适、方便;

御樽S户型-6室4厅5卫1厨建筑面积895.00平米

待定

6室4厅1厨5卫

待定

暂无

暂无

895 m²

暂无

少量

户型品鉴

整体户型方正,活动区域开阔,居住舒适度高;全明户型,各部分空间均有窗,可保证整体空间采光和通风,居住舒适度好;整体空间布局合理,能够保证动静分离和居室通风,方便使用;卧室厨卫等各个功能区的面积大小都比较合理,居住体验便利,整体舒适度高;

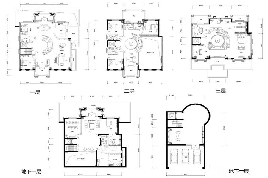
珺樽B-N户型地上三层-4室9厅5卫1厨建筑面积651.17平米

待定

4室9厅1厨5卫

待定

暂无

暂无

651.17 m²

暂无

少量

户型品鉴

各个空间户型方正,方便室内家具布置;整个空间全明通透,采光良好,同时利于居住空间通风;卧室作为休息区域,门朝向客厅或餐厅时,私密性一般;卧室厨卫等各个功能区的面积大小都比较合理,居住体验便利,整体舒适度高;

西区E-s1户型-地上二层-6室2厅6卫1厨建筑面积548.00平米

待定

6室2厅1厨6卫

待定

暂无

暂无

548 m²

暂无

少量

户型品鉴

整体户型方正,活动区域开阔,居住舒适度高;整个空间全明通透,采光良好,同时利于居住空间通风;整体空间布局合理,能够保证动静分离和居室通风,方便使用;卧室厨卫等各个功能区的面积大小都比较合理,居住体验便利,整体舒适度高;

西区D-N1户型-地上二层-4室2厅6卫1厨建筑面积447.00平米

待定

4室2厅1厨6卫

待定

暂无

暂无

447 m²

暂无

少量

户型品鉴

各个空间户型方正,方便室内家具布置;全明户型,各部分空间均有窗,可保证整体空间采光和通风,居住舒适度好;整体空间布局合理,能够保证动静分离和居室通风,方便使用;客厅、卧室、卫生间和厨房等主要功能间的尺寸以及比例适中,有利于采光和通风,居住起来舒适、方便;

我要咨询

一键领取最新楼盘信息!

订阅后金牌置业顾问将主动致电联系您并提供专业咨询服务,来电时您的真实号码将被隐藏

图片验证码