独院A户型-负二层-4室3厅9卫1厨建筑面积542.00平米

待定

4室3厅1厨9卫

待定

暂无

暂无

542 m²

暂无

少量

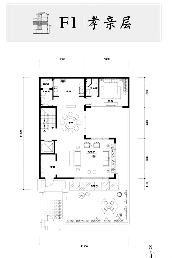
户型品鉴

各个空间户型方正,后期空间利用率高;全明通透户型,居住舒适度较高,整个空间采光充足,利于后期居住;整个户型空间布局合理,做到了干湿分离、动静分离,方便后期生活;卧室厨卫等各个功能区的面积大小都比较合理,居住体验便利,整体舒适度高;公摊低于15%,得房率较高。

独院C户型-负一层-4室3厅8卫1厨建筑面积441.00平米

待定

4室3厅1厨8卫

待定

暂无

暂无

441 m²

暂无

少量

户型品鉴

整体户型方正,活动区域开阔,居住舒适度高;全明户型,各部分空间均有窗,可保证整体空间采光和通风,居住舒适度好;居室布局合理,通风良好,动静分离,兼顾到了卧室和卫生间的私密性;卧室厨卫等各个功能区的面积大小都比较合理,居住体验便利,整体舒适度高;公摊低于15%,得房率较高。

独院D户型-负一层-5室3厅7卫1厨建筑面积460.00平米

待定

5室3厅1厨7卫

待定

暂无

暂无

460 m²

暂无

少量

户型品鉴

各个空间户型方正,方便室内家具布置;全明通透户型,居住舒适度较高,整个空间采光充足,利于后期居住;居室布局合理,通风良好,动静分离,兼顾到了卧室和卫生间的私密性;各个功能区的尺寸比例规范,布局合理,能很好地满足日常功能需求,整体空间开阔,采光充足,居住舒适度好;公摊低于15%,属于目前市场中公摊很低

独院B户型-一层-5室3厅8卫1厨建筑面积552.00平米

待定

5室3厅1厨8卫

待定

暂无

暂无

552 m²

暂无

少量

户型品鉴

各个空间户型方正,方便室内家具布置;全明通透户型,居住舒适度较高,整个空间采光充足,利于后期居住;居室布局合理,通风良好,动静分离,兼顾到了卧室和卫生间的私密性;各个功能区的尺寸比例规范,布局合理,能很好地满足日常功能需求,整体空间开阔,采光充足,居住舒适度好;公摊低于15%,得房率较高。

B1层-5室6厅9卫2厨建筑面积589.00平米

待定

5室6厅2厨9卫

待定

暂无

暂无

589 m²

暂无

少量

户型品鉴

整体户型方正,活动区域开阔,居住舒适度高;全明通透户型,居住舒适度较高,整个空间采光充足,利于后期居住;整个户型空间布局合理,做到了干湿分离、动静分离,方便后期生活;各个功能区的尺寸比例规范,布局合理,能很好地满足日常功能需求,整体空间开阔,采光充足,居住舒适度好;

F3层-5室6厅9卫2厨建筑面积755.00平米

待定

5室6厅2厨9卫

待定

暂无

暂无

755 m²

暂无

少量

户型品鉴

各个空间户型方正,方便室内家具布置;全明户型,各部分空间均有窗,可保证整体空间采光和通风,居住舒适度好;整个户型空间布局合理,做到了干湿分离、动静分离,方便后期生活;客厅、卧室、卫生间和厨房等主要功能间的尺寸以及比例适中,有利于采光和通风,居住起来舒适、方便;

我要咨询

一键领取最新楼盘信息!

订阅后金牌置业顾问将主动致电联系您并提供专业咨询服务,来电时您的真实号码将被隐藏

图片验证码