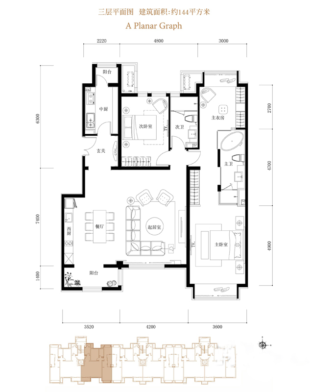
A3-3户型-2室2厅2卫1厨建筑面积144.00平米

待定

2室2厅1厨2卫

待定

暂无

暂无

144 m²

暂无

售罄

户型品鉴

整体户型方正,活动区域开阔,居住舒适度高;全明户型,各部分空间均有窗,可保证整体空间采光和通风,居住舒适度好;整个户型空间布局合理,做到了干湿分离、动静分离,方便后期生活;客厅、卧室、卫生间和厨房等主要功能间的尺寸以及比例适中,有利于采光和通风,居住起来舒适、方便;

C平-02户型-3室2厅2卫1厨建筑面积150.00平米

待定

3室2厅1厨2卫

待定

暂无

暂无

150 m²

暂无

售罄

户型品鉴

各个空间方正,后期 高。全明户型,各部分空间均有窗,可保证整体空间采光和通风,居住舒适度好;整体空间布局合理,能够保证动静分离和居室通风,方便使用;客厅、卧室、卫生间和厨房等主要功能间的尺寸以及比例适中,有利于采光和通风,居住起来舒适、方便;

四层户型-3室2厅3卫1厨建筑面积213.00平米

待定

3室2厅1厨3卫

待定

暂无

暂无

213 m²

暂无

售罄

户型品鉴

各个空间户型方正,方便室内家具布置;整个空间全明通透,采光良好,同时利于居住空间通风;整个户型空间布局合理,做到了干湿分离、动静分离,方便后期生活;客厅、卧室、卫生间和厨房等主要功能间的尺寸以及比例适中,有利于采光和通风,居住起来舒适、方便;

C平-05户型-2室2厅2卫1厨建筑面积150.00平米

待定

2室2厅1厨2卫

待定

暂无

暂无

150 m²

暂无

售罄

户型品鉴

各个空间户型方正,方便室内家具布置;整个空间全明通透,采光良好,同时利于居住空间通风;整体空间布局合理,能够保证动静分离和居室通风,方便使用;卧室厨卫等各个功能区的面积大小都比较合理,居住体验便利,整体舒适度高;

A3-2户型-2室2厅2卫1厨建筑面积147.00平米

待定

2室2厅1厨2卫

待定

暂无

暂无

147 m²

暂无

售罄

户型品鉴

各个空间方正,后期 高。全明通透户型,居住舒适度较高,整个空间采光充足,利于后期居住;居室布局合理,通风良好,动静分离,兼顾到了卧室和卫生间的私密性;客厅、卧室、卫生间和厨房等主要功能间的尺寸以及比例适中,有利于采光和通风,居住起来舒适、方便;

我要咨询

一键领取最新楼盘信息!

订阅后金牌置业顾问将主动致电联系您并提供专业咨询服务,来电时您的真实号码将被隐藏

图片验证码