中铁碧桂园

在售
住宅 小户型 生态宜居 成熟商圈 购物方便 医疗配套 地铁沿线 品牌地产

参考价格(均价/总价)

35000元 / 273万

建面

78-89㎡

预约看房

获取专属服务

开盘

2018.03.01

户型

二居室(6)

预售许可证

京房售证字(2017)187号

北京市北京市海淀区海淀镇永丰产业基地西北旺镇

变价提醒我
开盘通知我

楼盘动态 (3) 查看更多

  • 2018-6-16

    【中铁碧桂园】中铁碧桂园总建筑面积9.1万平方米

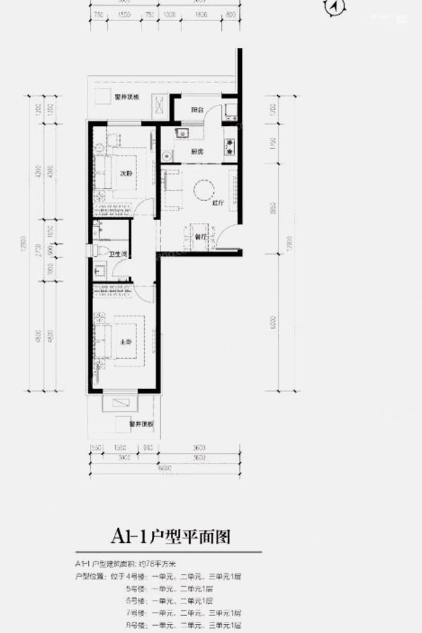
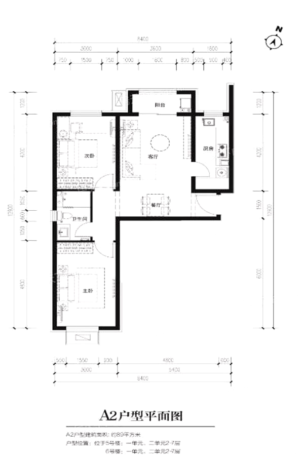
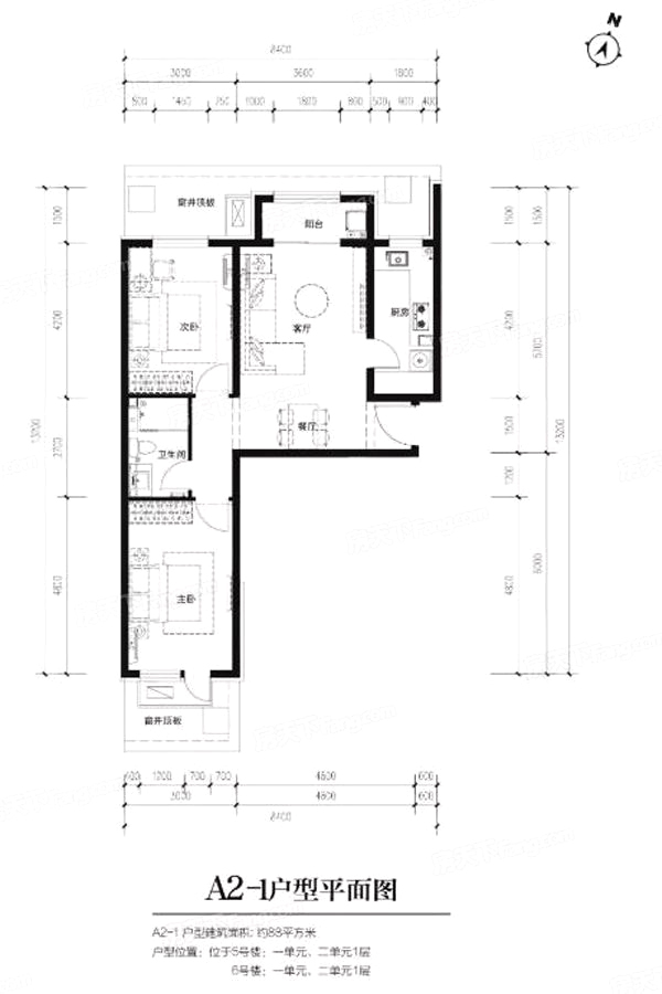
    中铁碧桂园总建筑面积9.1万平方米,占地面积4.3万平方米,位于海淀永丰产业基地西北旺镇,项目总共8栋楼,其中1#-3#楼为公租房,4#-8#栋楼均为“共有产权住宅”,78-89㎡两居,层高2.8米,4、7、8号楼为二梯四户,5、6号楼为一梯四户,主要为约78平方米二居共13套、约89平方米二居共603套,总套数约616套,含全装修费用,销售均价35000元/平方米。项目已结束集中选房,敬请关注!

  • 2018-6-16

    【中铁碧桂园】中铁碧桂园项目为共有产权住宅

    中铁碧桂园项目总共8栋楼,其中1#-3#楼为公租房,4#-8#栋楼均为“共有产权住宅”,78-89㎡两居,层高2.8米,4、7、8号楼为二梯四户,5、6号楼为一梯四户,主要为约78平方米二居共13套、约89平方米二居共603套,总套数约616套,含全装修费用,销售均价35000元/平方米。项目已结束集中选房,总建筑面积9.1万平方米,占地面积4.3万平方米,敬请关注! 中铁碧桂园鸟瞰效果图

  • 2018-6-16

    【中铁碧桂园】中铁碧桂园项目为海淀共有产权住宅

    中铁碧桂园总建筑面积9.1万平方米,占地面积4.3万平方米,位于海淀永丰产业基地西北旺镇,项目总共8栋楼,其中1#-3#楼为公租房,4#-8#栋楼均为“共有产权住宅”,78-89㎡两居,层高2.8米,4、7、8号楼为二梯四户,5、6号楼为一梯四户,主要为约78平方米二居共13套、约89平方米二居共603套,总套数约616套,含全装修费用,销售均价35000元/平方米。项目已结束集中选房,敬请关注!

订阅销控和动态

楼盘详情 查看更多

开发商

最新开盘

2018-03-01

交房时间

2019-12-31

产权年限

住宅(70年)

占地面积

43000 m²

地上车位

暂无

地下车位

暂无

咨询楼盘更多信息

专业顾问

马小良
专属一对一服务

周边配套 查看更多

  • 公交
  • 地铁
  • 学校
  • 医院
  • 银行
  • 购物

咨询周边配套及规划
免责声明

页面中所涉及的面积,如无特殊说明均为建筑面积,所涉及装修情况,标准以合同为准,页面中的图片仅供参考,请以售楼处实际情况为准。

意向区域

不限

总价预期

不限

我要咨询

一键领取最新楼盘信息!

订阅后金牌置业顾问将主动致电联系您并提供专业咨询服务,来电时您的真实号码将被隐藏

图片验证码