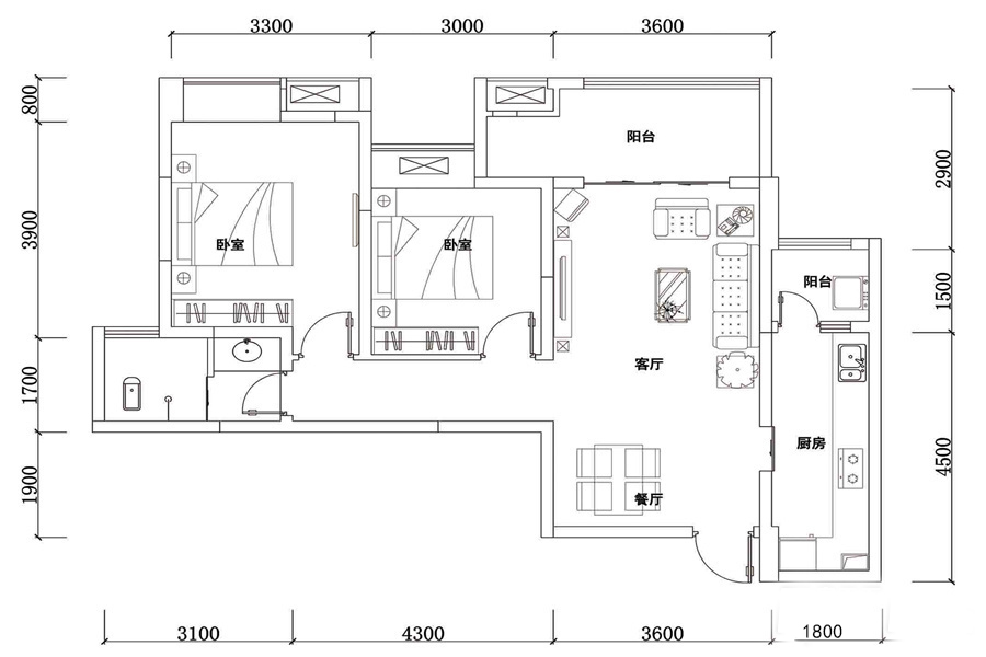
一期4栋标准层E户型-2室2厅1卫1厨建筑面积82.00平米

待定

2室2厅1厨1卫

待定

暂无

暂无

82 m²

暂无

未知

户型品鉴

整体户型方正,活动区域开阔,居住舒适度高;整个空间全明通透,采光良好,同时利于居住空间通风;厨房门朝向客厅,装修时要侧重考虑除油烟的措施;卧室厨卫等各个功能区的面积大小都比较合理,居住体验便利,整体舒适度高;公摊高于15%且低于25%,符合住宅公摊正常范围。

一期4栋标准层A户型-2室2厅1卫1厨建筑面积84.00平米

待定

2室2厅1厨1卫

待定

暂无

暂无

84 m²

暂无

未知

户型品鉴

各个空间户型方正,后期空间利用率高;整个空间全明通透,采光良好,同时利于居住空间通风;厨房门朝向客厅,能加装门即可规避油烟对客厅的影响;卧室厨卫等各个功能区的面积大小都比较合理,居住体验便利,整体舒适度高;公摊高于15%且低于25%,符合住宅公摊正常范围。

一期4栋标准层B户型-2室2厅1卫1厨建筑面积88.00平米

待定

2室2厅1厨1卫

待定

暂无

暂无

88 m²

暂无

未知

户型品鉴

整体户型方正,活动区域开阔,居住舒适度高;整个空间全明通透,采光良好,同时利于居住空间通风;厨房门朝向客厅,装修时要侧重考虑除油烟的措施;卧室厨卫等各个功能区的面积大小都比较合理,居住体验便利,整体舒适度高;公摊高于15%且低于25%,符合住宅公摊正常范围。

一期4栋标准层C1、C2户型-3室2厅1卫1厨建筑面积85.00平米

待定

3室2厅1厨1卫

待定

暂无

暂无

85 m²

暂无

未知

户型品鉴

各个空间户型方正,后期空间利用率高;全明户型,各部分空间均有窗,可保证整体空间采光和通风,居住舒适度好;厨房门朝向客厅,装修时要侧重考虑除油烟的措施;各个功能区的尺寸比例规范,布局合理,能很好地满足日常功能需求,整体空间开阔,采光充足,居住舒适度好;公摊高于15%且低于25%,符合住宅公摊正常范围。

一期4栋标准层D户型-2室2厅1卫1厨建筑面积81.00平米

待定

2室2厅1厨1卫

待定

暂无

暂无

81 m²

暂无

未知

户型品鉴

各个空间户型方正,后期空间利用率高;全明通透户型,居住舒适度较高,整个空间采光充足,利于后期居住;卧室进卫生间需要穿过餐厅或客厅;卫生间门朝向主要活动区域;卧室厨卫等各个功能区的面积大小都比较合理,居住体验便利,整体舒适度高;公摊高于15%且低于25%,符合住宅公摊正常范围。

我要咨询

一键领取最新楼盘信息!

订阅后金牌置业顾问将主动致电联系您并提供专业咨询服务,来电时您的真实号码将被隐藏

图片验证码