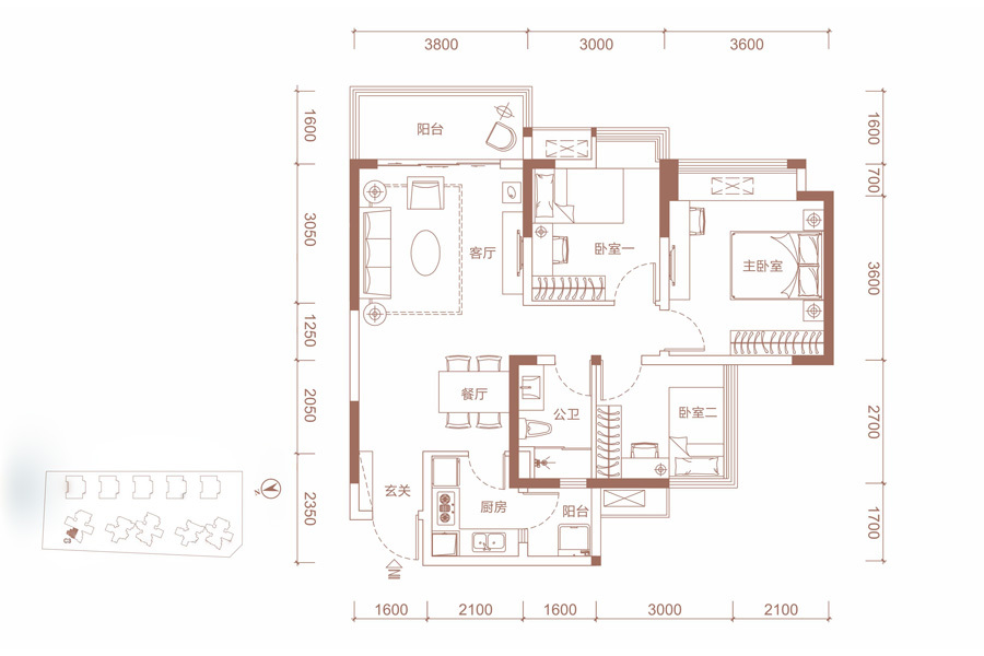
7#1单元、8#1单元标准层D2户型-4室2厅2卫1厨建筑面积122.00平米

待定

4室2厅1厨2卫

待定

暂无

暂无

122 m²

暂无

售罄

户型品鉴

各个空间户型方正,后期空间利用率高;户型不是南北通透,后期装修时可以考虑加装纱门改善通风;居室布局合理,通风良好,动静分离,兼顾到了卧室和卫生间的私密性;客厅、卧室、卫生间和厨房等主要功能间的尺寸以及比例适中,有利于采光和通风,居住起来舒适、方便;公摊高于15%且低于25%,符合住宅公摊正常范围。

一期1号楼C2户型-3室2厅1卫1厨建筑面积89.00平米

待定

3室2厅1厨1卫

待定

暂无

暂无

89 m²

暂无

售罄

户型品鉴

整体户型方正,活动区域开阔,居住舒适度高;全明通透户型,居住舒适度较高,整个空间采光充足,利于后期居住;整体空间布局合理,能够保证动静分离和居室通风,方便使用;客厅、卧室、卫生间和厨房等主要功能间的尺寸以及比例适中,有利于采光和通风,居住起来舒适、方便;公摊高于15%且低于25%,符合住宅公摊正常范

一期1号楼D2户型-4室2厅2卫1厨建筑面积119.00平米

待定

4室2厅1厨2卫

待定

暂无

暂无

119 m²

暂无

售罄

户型品鉴

各个空间户型方正,后期空间利用率高;整个空间全明通透,采光良好,同时利于居住空间通风;卧室进卫生间需要穿过餐厅或客厅;卧室作为休息区域,门朝向客厅或餐厅时,私密性一般;各个功能区的尺寸比例规范,布局合理,能很好地满足日常功能需求,整体空间开阔,采光充足,居住舒适度好;公摊高于15%且低于25%,符合

一期1号楼C3户型-3室2厅1卫1厨建筑面积90.00平米

待定

3室2厅1厨1卫

待定

暂无

暂无

90 m²

暂无

售罄

户型品鉴

各个空间户型方正,方便室内家具布置;全明户型,各部分空间均有窗,可保证整体空间采光和通风,居住舒适度好;整体空间布局合理,能够保证动静分离和居室通风,方便使用;卧室厨卫等各个功能区的面积大小都比较合理,居住体验便利,整体舒适度高;公摊高于15%且低于25%,符合住宅公摊正常范围。

一期1号楼C3-1户型-3室2厅1卫1厨建筑面积93.00平米

待定

3室2厅1厨1卫

待定

暂无

暂无

93 m²

暂无

售罄

户型品鉴

各个空间户型方正,方便室内家具布置;南北不通透的户型,后期居住时常开门通风换气即可;厨房门对着客厅,室内通风好,则无需顾虑油烟的困扰;客厅、卧室、卫生间和厨房等主要功能间的尺寸以及比例适中,有利于采光和通风,居住起来舒适、方便;公摊高于15%且低于25%,符合住宅公摊正常范围。

我要咨询

一键领取最新楼盘信息!

订阅后金牌置业顾问将主动致电联系您并提供专业咨询服务,来电时您的真实号码将被隐藏

图片验证码