悦湖岛D户型-3室3厅4卫1厨建筑面积229.00平米

待定

3室3厅1厨4卫

待定

暂无

暂无

229 m²

暂无

少量

户型品鉴

各个空间户型方正,方便室内家具布置;卫生间如没有窗子,可加管道通风,但是相对来说卫生间有窗户是好的情况,利于排湿,不会使湿气进到室内。整个户型空间布局合理,做到了干湿分离、动静分离,方便后期生活;客厅、卧室、卫生间和厨房等主要功能间的尺寸以及比例适中,有利于采光和通风,居住起来舒适、方便;

悦湖岛B户型-5室3厅3卫1厨建筑面积368.00平米

待定

5室3厅1厨3卫

待定

暂无

暂无

368 m²

暂无

少量

户型品鉴

各个空间户型方正,方便室内家具布置;全明户型,各部分空间均有窗,可保证整体空间采光和通风,居住舒适度好;整个户型空间布局合理,做到了干湿分离、动静分离,方便后期生活;卧室厨卫等各个功能区的面积大小都比较合理,居住体验便利,整体舒适度高;

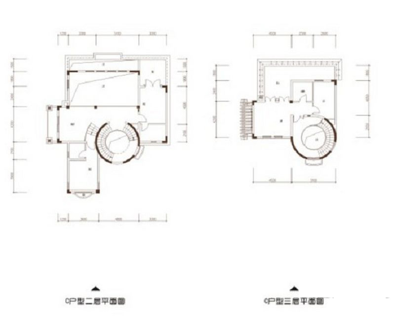
悦湖岛C户型-4室3厅3卫1厨建筑面积306.00平米

待定

4室3厅1厨3卫

待定

暂无

暂无

306 m²

暂无

少量

户型品鉴

各个空间户型方正,方便室内家具布置;全明通透户型,居住舒适度较高,整个空间采光充足,利于后期居住;整体空间布局合理,能够保证动静分离和居室通风,方便使用;客厅、卧室、卫生间和厨房等主要功能间的尺寸以及比例适中,有利于采光和通风,居住起来舒适、方便;

我要咨询

一键领取最新楼盘信息!

订阅后金牌置业顾问将主动致电联系您并提供专业咨询服务,来电时您的真实号码将被隐藏

图片验证码