参考价格(均价/总价)
8500元 / 56万
建面
67㎡
预约看房
获取专属服务
开盘
暂无
户型
三居室(1)
预售许可证
暂无
四川省成都市温江区温江涌泉街道凤凰街188号
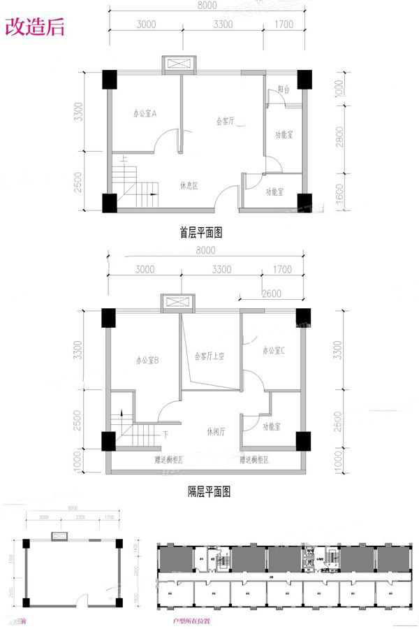
主力户型 (1) 查看更多
楼盘详情 查看更多
暂无
暂无
写字楼(40年)
暂无
暂无
暂无
为您推荐 查看更多
海天云鼎 在售
写字楼 低单价 综合体
温江区
13000 元/平起
联邦财富中心 在售
写字楼 车位充足 现房
武侯区
7600 元/平起
奥园国际中心 在售
写字楼 环线房 多轨交汇
成华区-万年场
12000 元/平起
蓝海天地 在售
写字楼 地铁沿线 低单价
金牛区
8500 元/平起
乐佳广场 在售
写字楼 环线房 公交直达
都江堰市
6200 元/平起
电子科大科技园 在售
写字楼 大户型 金牌物业
双流区 500-2542㎡
9500 元/平起
合能•铂悦华庭 在售
写字楼 大户型 低单价
桐乡市 114-177㎡
11000 元/平起
奥克斯万达广场19楼20楼 在售
写字楼 大户型 低单价
高新区-石羊 1073-2179.26㎡
13000 元/平起
华霖点金城 在售
写字楼 低单价
金牛区-五块石
12000 元/平起
国宾总部基地 在售
写字楼 低单价
金牛区
8000 元/平起
页面中所涉及的面积,如无特殊说明均为建筑面积,所涉及装修情况,标准以合同为准,页面中的图片仅供参考,请以售楼处实际情况为准。
领取优惠
一键锁定"签约99折送车位"购房优惠!
成功领取活动优惠
您已成功领取了该活动优惠,我们会尽快联系您
我要咨询
一键领取最新楼盘信息!
订阅后金牌置业顾问将主动致电联系您并提供专业咨询服务,来电时您的真实号码将被隐藏
图片验证码