参考价格(均价/总价)
24000元 / 1365万
建面
569-883㎡
预约看房
获取专属服务
开盘
暂无
户型
一居室(5)
预售许可证
暂无
吉林省长春市朝阳区朝阳西安大路与永安街交会(吉隆坡酒店西侧)
主力户型 (5) 查看更多
楼盘详情 查看更多
暂无
暂无
写字楼(40年)
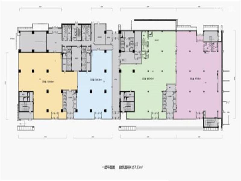
4157 m²
550
55
为您推荐 查看更多
龙腾国际大厦 在售
写字楼 大户型 成熟商圈
南关区-净月街道 1110㎡
13000 元/平起
长春国际金融中心 在售
写字楼 大户型 生态宜居
南关区 177.94-256.18㎡
15000 元/平起
垠禄新界 在售
住宅 大户型 生态宜居
二道区 33.67-273㎡
10000 元/平起
希派创意城 在售
写字楼 大户型 小户型
南关区 48.72-183.33㎡
9800 元/平起
证大立方大厦 在售
写字楼 大户型 生态宜居
南关区-净月街道 1268-1630㎡
8500 元/平起
恒丰国际 在售
写字楼 大户型 成熟商圈
南关区-净月街道 2000㎡
9000 元/平起
第一国际中心 待售
写字楼 医疗配套 地铁沿线
二道区 0-100㎡
16000 元/平起
新星宇典约商誉 待售
写字楼 成熟商圈 购物方便
南关区 0㎡
9000 元/平起
总部基地·金融第五城 在售
写字楼 大户型 成熟商圈
二道区 561-960㎡
11000 元/平起
明宇金融广场 在售
写字楼 大户型 成熟商圈
南关区-净月街道 869-1822.4㎡
13000 元/平起
页面中所涉及的面积,如无特殊说明均为建筑面积,所涉及装修情况,标准以合同为准,页面中的图片仅供参考,请以售楼处实际情况为准。
领取优惠
一键锁定"签约99折送车位"购房优惠!
成功领取活动优惠
您已成功领取了该活动优惠,我们会尽快联系您
我要咨询
一键领取最新楼盘信息!
订阅后金牌置业顾问将主动致电联系您并提供专业咨询服务,来电时您的真实号码将被隐藏
图片验证码