凯乐微谷

在售
商住 公交直达 地铁沿线 小户型 综合体 投资盘

参考价格(均价/总价)

13000元 / 46万

建面

36-57㎡

预约看房

获取专属服务

开盘

暂无

户型

一居室(3)

预售许可证

暂无

湖南省长沙市开福区四方坪开福/四方坪/陡岭路与栖凤路交汇处西南角

变价提醒我
开盘通知我

楼盘动态 (28) 查看更多

  • 2021-1-29

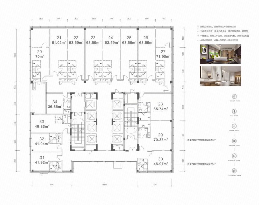
    在售户型36-70平公寓

    在售1-A#公寓,户型36-70平公寓,毛坯均价12500-13500元/平,市内搭乘19路到栖凤路站下车即可,或搭乘906路到水木轩站下车。

  • 2021-1-29

    项目周边

    商超:麦德龙、岁宝百货、伍家岭生活广场、华创国际广场、凤凰天街 医院:德福医院、保益堂大药房、同济医院、康泰药号、中南大学湘雅医学院门诊部 酒店:北辰洲际酒店、珠江花园酒店;大旺角酒店、华悦大酒店

  • 2021-1-29

    项目在售1-A#酒店式公寓

    项目在售1-A#酒店式公寓,带装修均价15000元/平,8梯23户,户型36-70平,楼栋共24层;另2#毛坯公寓认筹中,户型57-67平,楼栋共18层,层高4米,4梯14户,将推房源约154套,预计均价13000元/平。

订阅销控和动态

楼盘详情 查看更多

开发商

湖南盛长安房地产开发有限公司

最新开盘

暂无

交房时间

暂无

产权年限

商住(40年)

占地面积

44215 m²

地上车位

0

地下车位

700

周边配套 查看更多

  • 公交
  • 地铁
  • 学校
  • 医院
  • 银行
  • 购物

免责声明

页面中所涉及的面积,如无特殊说明均为建筑面积,所涉及装修情况,标准以合同为准,页面中的图片仅供参考,请以售楼处实际情况为准。

意向区域

不限

总价预期

不限

我要咨询

一键领取最新楼盘信息!

订阅后金牌置业顾问将主动致电联系您并提供专业咨询服务,来电时您的真实号码将被隐藏

图片验证码