参考价格(均价/总价)
13000元 / 57万
建面
44.22-54.27㎡
预约看房
获取专属服务
开盘
2020.12.04
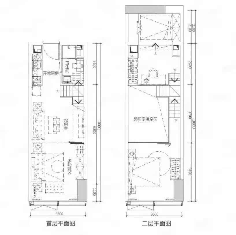
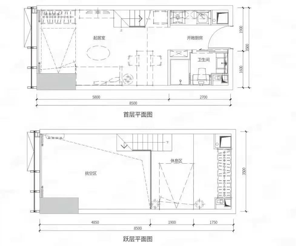
户型
一居室(3)
预售许可证
长住建委售字(2020)第0619号
湖南省长沙市雨花区井湾子雨花/井湾子/雨花湘府路与韶山路交汇处
主力户型 (3) 查看更多
楼盘详情 查看更多
长沙星尚置业发展有限责任公司
2020-12-04
暂无
商住(40年)
71245 m²
71
3919
为您推荐 查看更多
红星国际公寓 在售
商住 装修房 综合体
雨花区-井湾子 41-47㎡
12000 元/平起
卓越伊景寓 在售
商住 成熟商圈 近主干道
雨花区-圭塘 35㎡
12000 元/平起
城际国金公馆 在售
商住 多轨交汇 绿化率高
雨花区 35.97-44.44㎡
12500 元/平起
兴旺小爱同学 在售
商住 临近高速 近主干道
雨花区-跳马镇 40.6-95.98㎡
9500 元/平起
世茂璀璨天城 在售
商住 贴心物业 近主干道
雨花区 47㎡
12000 元/平起
新都会公馆 在售
商住 近主干道 贴心物业
雨花区-洞井 39.38-41.6㎡
10500 元/平起
长沙屿 在售
商住 贴心物业 近主干道
雨花区-跳马镇 500-548.94㎡
8000 元/平起
德思勤城市广场 在售
商住 配套齐全 车位充足
雨花区 147.51㎡
15500 元/平起
泰禹·爱马仕公馆 待售
商住 小户型 生态宜居
雨花区-雨花亭 41.71-58.56㎡
17000 元/平起
美来美·壹中心 在售
商住 大户型 金牌物业
雨花区 112.02-145.73㎡
15000 元/平起
页面中所涉及的面积,如无特殊说明均为建筑面积,所涉及装修情况,标准以合同为准,页面中的图片仅供参考,请以售楼处实际情况为准。
领取优惠
一键锁定"签约99折送车位"购房优惠!
成功领取活动优惠
您已成功领取了该活动优惠,我们会尽快联系您
我要咨询
一键领取最新楼盘信息!
订阅后金牌置业顾问将主动致电联系您并提供专业咨询服务,来电时您的真实号码将被隐藏
图片验证码