参考价格(均价/总价)
7500元 / 71万
建面
95-115㎡
预约看房
获取专属服务
开盘
暂无
户型
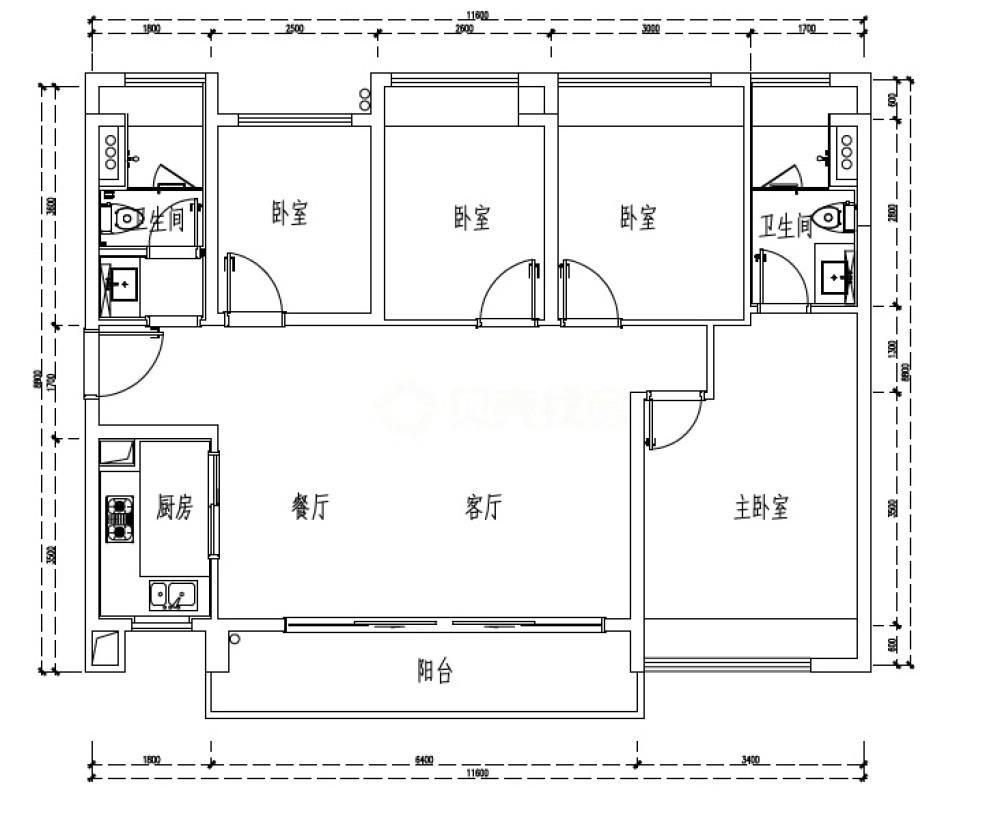
三居室(3)、 四居室(2)
预售许可证
暂无
广东省佛山市高明区荷城高明/荷城/学府路13号
主力户型 (5) 查看更多
楼盘详情 查看更多
佛山市高明区龙光景骏房地产有限公司
暂无
暂无
住宅(70年)
23275 m²
23
455
为您推荐 查看更多
万科中骏金域西江 在售
住宅 多轨交汇 品牌房企
高明区-荷城 93㎡
9500 元/平起
碧桂园联丰天汇湾 在售
住宅 现房 近主干道
高明区-荷城 110-143㎡
11500 元/平起
明信华府 在售
住宅 即将交房 公交直达
高明区-荷城 87㎡
7200 元/平起
招商熙园 在售
住宅 现房 公交直达
高明区-荷城 100-120㎡
8500 元/平起
鑫创名湖世家 在售
住宅 公交直达 佛山楼盘
高明区-荷城 92㎡
9500 元/平起
美的明湖北湾花园二期 在售
住宅 近主干道 公交直达
高明区-荷城 105-141㎡
10800 元/平起
富荣花苑 在售
住宅 菜市场 亲子乐园
高明区-荷城 106㎡
7500 元/平起
颐安·天璟名庭 在售
住宅 临近高速 佛山楼盘
高明区-荷城 106㎡
12000 元/平起
保利玥府 在售
住宅 现房 临近高速
高明区-荷城 128㎡
12500 元/平起
绿地熙江广场 在售
住宅 近主干道 公交直达
高明区-荷城 95㎡
11500 元/平起
页面中所涉及的面积,如无特殊说明均为建筑面积,所涉及装修情况,标准以合同为准,页面中的图片仅供参考,请以售楼处实际情况为准。
领取优惠
一键锁定"签约99折送车位"购房优惠!
成功领取活动优惠
您已成功领取了该活动优惠,我们会尽快联系您
我要咨询
一键领取最新楼盘信息!
订阅后金牌置业顾问将主动致电联系您并提供专业咨询服务,来电时您的真实号码将被隐藏
图片验证码