招商樾园

在售
住宅 大户型 小户型 生态宜居 装修房 医疗配套 购物方便 成熟商圈 近主干道

参考价格(均价/总价)

10500元 / 99万

建面

95-180㎡

预约看房

获取专属服务

开盘

暂无

户型

三居室(2)、 四居室(9)

预售许可证

暂无

广东省佛山市三水北三水/北江新区/佛山市三水区西南街道建设大道7号招商越园

变价提醒我
开盘通知我

楼盘动态 (73) 查看更多

  • 2021-4-7

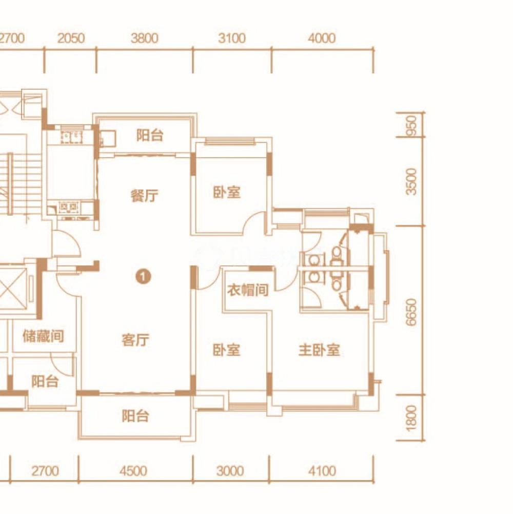
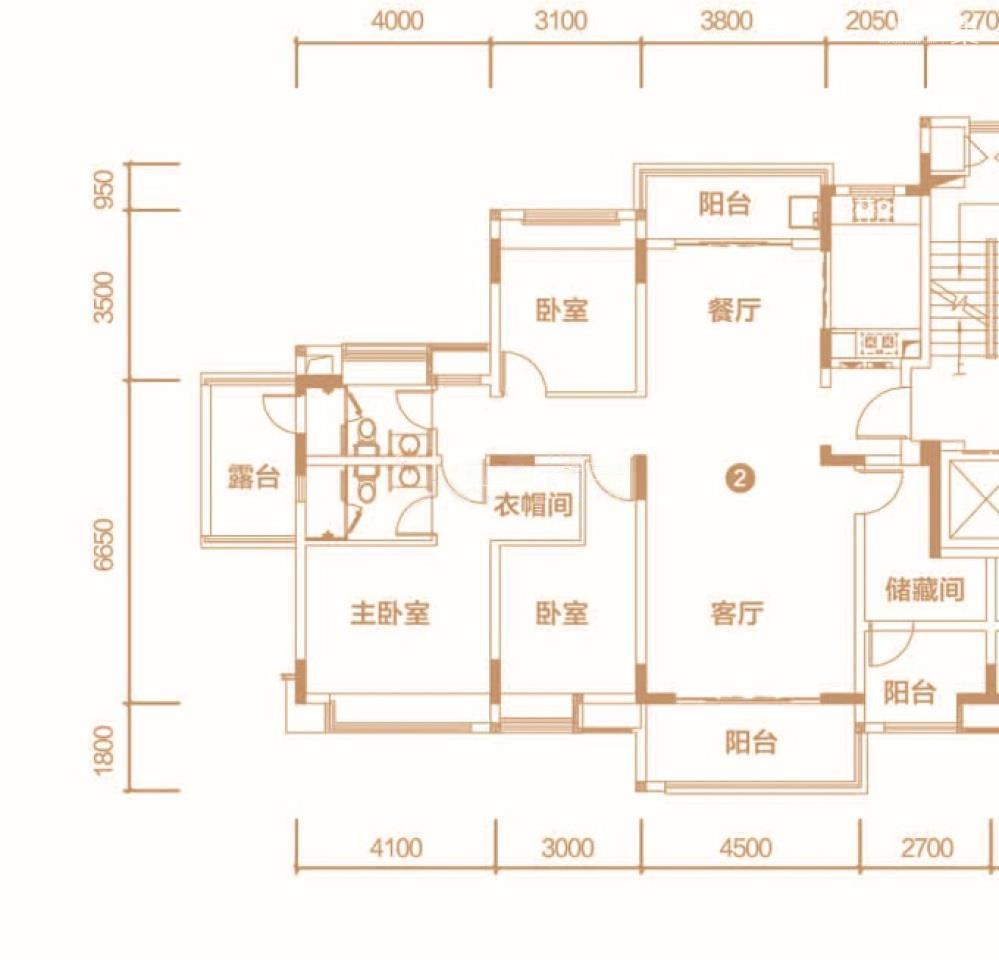
    在售建面99-180㎡4居

    在售均价13000元/平米-14500元/平米,预计2020年底交楼,8、13、14座,建面99-180㎡4居,项目位于三水区北江新区凤凰公园南侧。

  • 2021-4-7

    在售95-119㎡三四房

    在售三至四房单位洋房产品,涵盖建筑面积约为95-114-119㎡三四房,楼高33层,2梯4户设计,均价约10500元/㎡,首付3成30万。

  • 2021-4-7

    在售均价10500元/㎡

    在售三至四房单位洋房产品,涵盖建筑面积约为95-114-119㎡三四房,楼高33层,2梯4户设计,均价约10500元/㎡,首付3成30万。

订阅销控和动态

楼盘详情 查看更多

开发商

佛山招商中环房地产有限公司

最新开盘

暂无

交房时间

暂无

产权年限

住宅(70年)

占地面积

70500 m²

地上车位

191

地下车位

1728

周边配套 查看更多

  • 公交
  • 地铁
  • 学校
  • 医院
  • 银行
  • 购物

免责声明

页面中所涉及的面积,如无特殊说明均为建筑面积,所涉及装修情况,标准以合同为准,页面中的图片仅供参考,请以售楼处实际情况为准。

意向区域

不限

总价预期

不限

我要咨询

一键领取最新楼盘信息!

订阅后金牌置业顾问将主动致电联系您并提供专业咨询服务,来电时您的真实号码将被隐藏

图片验证码