参考价格(均价/总价)
9999元 / 88万
建面
89㎡
预约看房
获取专属服务
开盘
2019.05.14
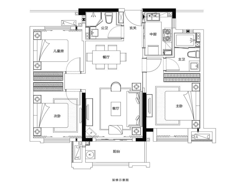
户型
三居室(1)
预售许可证
FZ许20190070
福建省福州市马尾区福建;福州;闽江口
主力户型 (1) 查看更多
楼盘详情 查看更多
2019-05-14
2021-12-31
暂无
暂无
暂无
暂无
为您推荐 查看更多
滨海中心 在售
写字楼
马尾区-马尾镇 37㎡
27000 元/平起
万科紫台 在售
住宅 小户型 金牌物业
马尾区 79-105㎡
13500 元/平起
名城银河湾花园 待售
住宅
马尾区-马尾镇 52㎡
20000 元/平起
三盛雅居乐璞悦长滩 在售
住宅 小户型
马尾区-亭江镇 69-88㎡
9000 元/平起
远洋山水 在售
住宅 小户型 车位充足
马尾区-马尾镇 79-109㎡
15500 元/平起
名城悦郡 在售
住宅 车位充足
马尾区-马尾镇 33-57㎡
22000 元/平起
名城紫金轩 在售
住宅 小户型
马尾区-马尾镇 60-127㎡
22000 元/平起
名城紫金轩2021 在售
住宅 大户型 小户型
马尾区-马尾镇 60-138㎡
价格待定
富力悦山湖 待售
小户型 装修房
闽侯县 89-119㎡
8388 元/平起
融信·有墅 在售
小户型 低密度
晋安区 89㎡
12000 元/平起
页面中所涉及的面积,如无特殊说明均为建筑面积,所涉及装修情况,标准以合同为准,页面中的图片仅供参考,请以售楼处实际情况为准。
领取优惠
一键锁定"签约99折送车位"购房优惠!
成功领取活动优惠
您已成功领取了该活动优惠,我们会尽快联系您
我要咨询
一键领取最新楼盘信息!
订阅后金牌置业顾问将主动致电联系您并提供专业咨询服务,来电时您的真实号码将被隐藏
图片验证码