参考价格(均价/总价)
8500元 / 59万
建面
70-129㎡
预约看房
获取专属服务
开盘
暂无
户型
二居室(1)、 三居室(4)、 四居室(4)
预售许可证
暂无
广东省惠州市惠阳区新圩镇花山湖旁
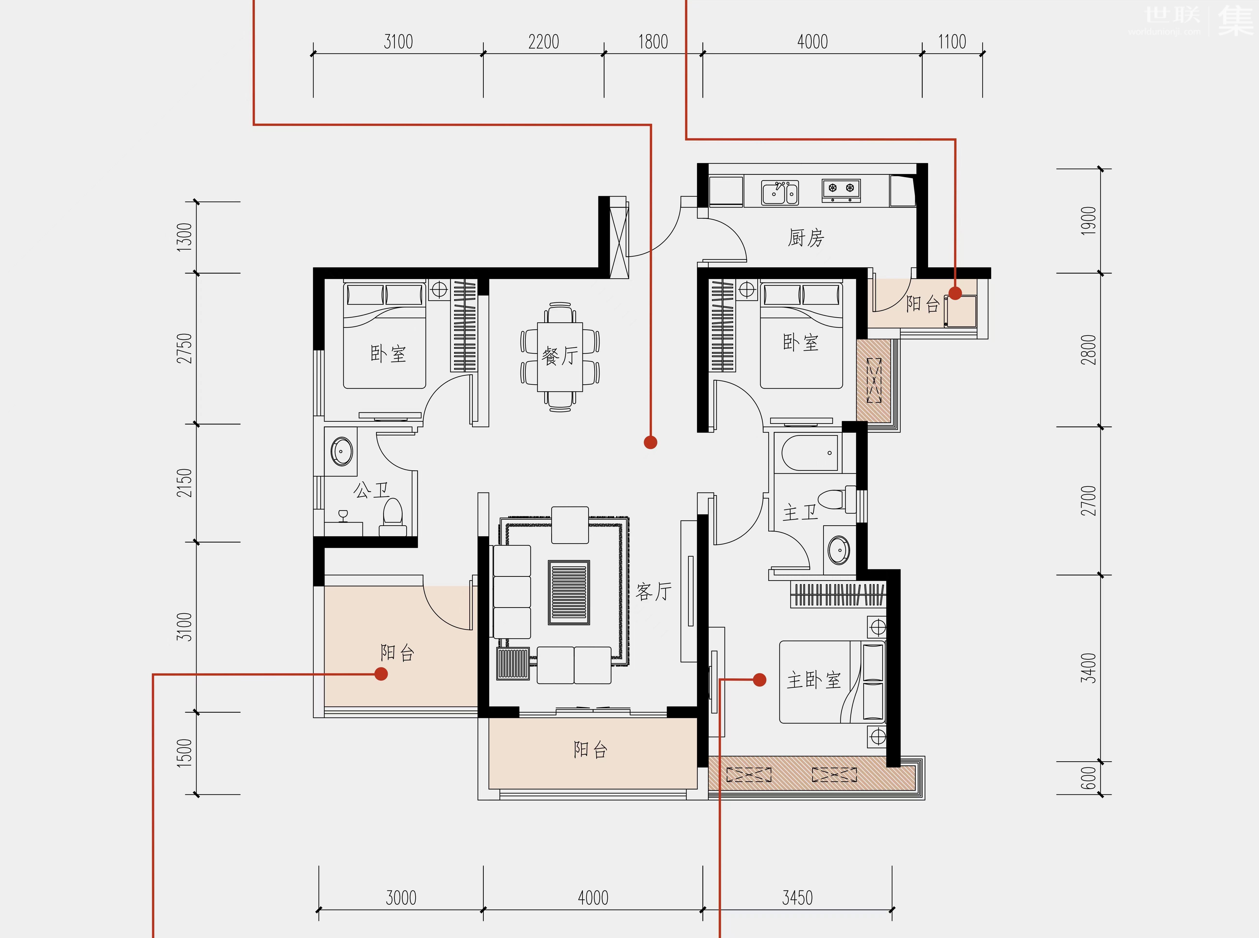
主力户型 (9) 查看更多
专业顾问 查看更多
为您推荐 查看更多
天健书香名邸 在售
住宅 品牌地产 交通便利
惠阳区-镇隆镇 90-123㎡
8000 元/平起
东亚玉蓝宝丰华府 在售
住宅 车位充足
惠阳区-良井镇 88-125㎡
7400 元/平起
万科万荟 待售
住宅 品牌房企 贴心物业
惠阳区 75-115㎡
12500 元/平起
牧云左岸 待售
住宅
惠阳区-秋长 75-116㎡
17500 元/平起
仁和美地 在售
住宅 生态宜居 成熟商圈
惠阳区-淡水 82㎡
11000 元/平起
中交紫薇春晓花园 在售
住宅 小户型 生态宜居
仲恺高新区-潼湖镇 78-105㎡
11774 元/平起
华弘星岸城 在售
住宅 交通便利 环境资源大盘
博罗县-罗阳镇 99.69-274㎡
8500 元/平起
星河冠誉府 在售
住宅 地铁沿线 学区房
仲恺高新区-惠环 87-139㎡
12500 元/平起
福晟钱隆华府 在售
住宅 高铁物业 交通便利
仲恺高新区-陈江 81-137㎡
11226 元/平起
实地惠州蔷薇国际 在售
住宅 小户型 生态宜居
仲恺高新区 90-112㎡
10900 元/平起
页面中所涉及的面积,如无特殊说明均为建筑面积,所涉及装修情况,标准以合同为准,页面中的图片仅供参考,请以售楼处实际情况为准。
领取优惠
一键锁定"签约99折送车位"购房优惠!
成功领取活动优惠
您已成功领取了该活动优惠,我们会尽快联系您
我要咨询
一键领取最新楼盘信息!
订阅后金牌置业顾问将主动致电联系您并提供专业咨询服务,来电时您的真实号码将被隐藏
图片验证码