40方户型-2室2厅2卫1厨建筑面积40.00平米

待定

2室2厅1厨2卫

待定

暂无

暂无

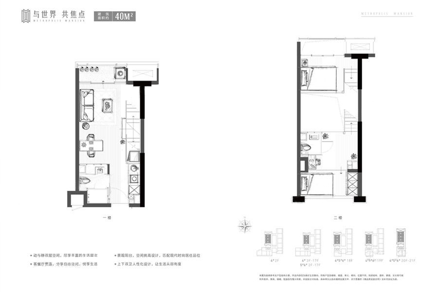
40 m²

暂无

售罄

户型品鉴

各个空间户型方正,方便室内家具布置;卫生间没有对外窗户;整个户型空间布局合理,做到了干湿分离、动静分离,方便后期生活;客厅、卧室、卫生间和厨房等主要功能间的尺寸以及比例适中,有利于采光和通风,居住起来舒适、方便。

55方户型-3室2厅2卫1厨建筑面积55.00平米

待定

3室2厅1厨2卫

待定

暂无

暂无

55 m²

暂无

售罄

户型品鉴

整体户型方正,活动区域开阔,居住舒适度高;卫生间没有对外窗户;各个功能区的尺寸比例规范,布局合理,能很好地满足日常功能需求,整体空间开阔,采光充足,居住舒适度好。

89方户型-3室2厅2卫1厨建筑面积89.00平米

待定

3室2厅1厨2卫

待定

暂无

暂无

89 m²

暂无

售罄

户型品鉴

整体户型方正,活动区域开阔,居住舒适度高;全明户型,各部分空间均有窗,可保证整体空间采光和通风,居住舒适度好;整个户型空间布局合理,做到了干湿分离、动静分离,方便后期生活;卧室厨卫等各个功能区的面积大小都比较合理,居住体验便利,整体舒适度高;公摊高于15%且低于25%,符合住宅公摊正常范围。

119方户型-4室2厅2卫1厨建筑面积119.00平米

待定

4室2厅1厨2卫

待定

暂无

暂无

119 m²

暂无

售罄

户型品鉴

各个空间户型方正,方便室内家具布置;整个空间全明通透,采光良好,同时利于居住空间通风;居室布局合理,通风良好,动静分离,兼顾到了卧室和卫生间的私密性;客厅、卧室、卫生间和厨房等主要功能间的尺寸以及比例适中,有利于采光和通风,居住起来舒适、方便;公摊高于15%且低于25%,符合住宅公摊正常范围。

30方户型-2室1厅1卫1厨建筑面积30.00平米

待定

2室1厅1厨1卫

待定

暂无

暂无

30 m²

暂无

售罄

户型品鉴

各个空间户型方正,方便室内家具布置;卫生间没有对外窗户,可通过加装排风机改善通风除湿;整体空间布局合理,能够保证动静分离和居室通风,方便使用;卧室厨卫等各个功能区的面积大小都比较合理,居住体验便利,整体舒适度高。

我要咨询

一键领取最新楼盘信息!

订阅后金牌置业顾问将主动致电联系您并提供专业咨询服务,来电时您的真实号码将被隐藏

图片验证码