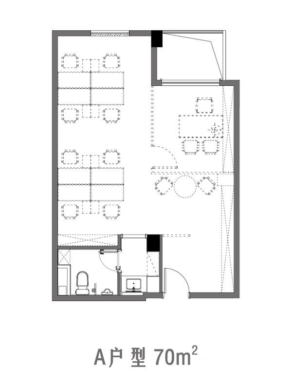
SOHO70方A户型-1室1厅1卫0厨建筑面积70.00平米

24000 元/m²

1室1厅0厨1卫

168 万

暂无

暂无

70 m²

暂无

少量

户型品鉴

整个空间方正,拐角少,后期利用难度低,提升整个空间的利用率卫生间如没有窗子,可加管道通风,但是相对来说卫生间有窗户是好的情况,利于排湿,不会使湿气进到室内。公摊高于15%且低于25%,符合住宅公摊正常范围。

SOHO120方C户型-2室1厅1卫0厨建筑面积120.00平米

24000 元/m²

2室1厅0厨1卫

288 万

暂无

暂无

120 m²

暂无

少量

户型品鉴

各个空间户型方正,后期空间利用率高;南北不通透的户型,后期居住时常开门通风换气即可;比较重要的空间无对外窗户;卧室厨卫等各个功能区的面积大小都比较合理,居住体验便利,整体舒适度高;公摊相对合理。

177方户型-3室2厅2卫1厨建筑面积177.00平米

待定

3室2厅1厨2卫

待定

暂无

暂无

177 m²

暂无

未知

户型品鉴

各个空间户型方正,后期空间利用率高;整个空间全明通透,采光良好,同时利于居住空间通风;整个户型空间布局合理,做到了干湿分离、动静分离,方便后期生活;客厅、卧室、卫生间和厨房等主要功能间的尺寸以及比例适中,有利于采光和通风,居住起来舒适、方便;公摊高于15%且低于25%,符合住宅公摊正常范围。

SOHO110方B户型-2室1厅1卫0厨建筑面积110.00平米

24000 元/m²

2室1厅0厨1卫

264 万

暂无

暂无

110 m²

暂无

少量

户型品鉴

整体户型方正,活动区域开阔,居住舒适度高;公摊相对合理。

SOHO140方D户型-1室1厅1卫0厨建筑面积140.00平米

24000 元/m²

1室1厅0厨1卫

336 万

暂无

暂无

140 m²

暂无

少量

户型品鉴

各个空间户型方正,后期空间利用率高;公摊相对合理。

283方户型-4室2厅4卫1厨建筑面积283.00平米

待定

4室2厅1厨4卫

待定

暂无

暂无

283 m²

暂无

少量

户型品鉴

整体户型方正,活动区域开阔,居住舒适度高;卫生间没有对外窗户,可通过加装排风机改善通风除湿;整个户型空间布局合理,做到了干湿分离、动静分离,方便后期生活;卧室厨卫等各个功能区的面积大小都比较合理,居住体验便利,整体舒适度高;公摊高于15%且低于25%,符合住宅公摊正常范围。

我要咨询

一键领取最新楼盘信息!

订阅后金牌置业顾问将主动致电联系您并提供专业咨询服务,来电时您的真实号码将被隐藏

图片验证码