参考价格(均价/总价)
19200元 / 243万
建面
127-195㎡
预约看房
获取专属服务
开盘
暂无
户型
四居室(1)、 五居室(2)
预售许可证
暂无
浙江省杭州市富阳市银湖科技城九龙大道180号
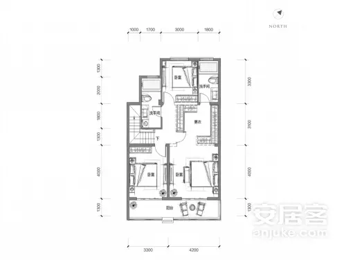
主力户型 (3) 查看更多
楼盘详情 查看更多
暂无
暂无
别墅(70年)
492506 m²
暂无
4843
为您推荐 查看更多
三江澳海澜庭 在售
别墅 大户型 低密度
富阳市 142-531㎡
7000 元/平起
鸿茂八墅OCTVILLAS 待售
别墅 医疗配套 学区房
富阳市
30000 元/平起
杭州上林院 在售
别墅 大户型 生态宜居
富阳市 215-226㎡
6000000 元/套起
绿城富春玫瑰园 在售
别墅 大户型 生态宜居
富阳市 230-670㎡
价格待定
阳光城上林湖 在售
别墅 大户型 成熟商圈
富阳市 260㎡
35000 元/平起
融创水榭山 在售
住宅 大户型 学区房
富阳市 150-203㎡
11000 元/平起
郡原列岛花园 在售
别墅 大户型 生态宜居
临安市 482㎡
20000 元/平起
天屿明珠湾 在售
别墅 大户型 绿化率高
淳安县 350㎡
20753 元/平起
三盛颐景御园 在售
别墅 大户型 成熟商圈
余杭区 167-184㎡
23000 元/平起
千岛湖随园 在售
别墅 大户型 成熟商圈
淳安县 357-749㎡
21000 元/平起
页面中所涉及的面积,如无特殊说明均为建筑面积,所涉及装修情况,标准以合同为准,页面中的图片仅供参考,请以售楼处实际情况为准。
领取优惠
一键锁定"签约99折送车位"购房优惠!
成功领取活动优惠
您已成功领取了该活动优惠,我们会尽快联系您
我要咨询
一键领取最新楼盘信息!
订阅后金牌置业顾问将主动致电联系您并提供专业咨询服务,来电时您的真实号码将被隐藏
图片验证码