一期金奥国际中心11层1007上跃户型-2室2厅4卫1厨建筑面积187.00平米

待定

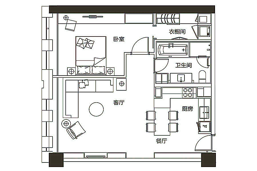
2室2厅1厨4卫

待定

暂无

暂无

187 m²

暂无

售罄

户型品鉴

各个空间户型方正,后期空间利用率高;通透户型,保证空气能够流通起来,空气质量较好;采光较好,保证居住舒适度。整体空间布局合理,能够保证动静分离和居室通风,方便使用;卧室厨卫等各个功能区的面积大小都比较合理,居住体验便利,整体舒适度高;公摊高于15%且低于25%,符合住宅公摊正常范围。

一期金奥公寓4层301户型-2室2厅1卫1厨建筑面积200.00平米

待定

2室2厅1厨1卫

待定

暂无

暂无

200 m²

暂无

售罄

户型品鉴

各个空间户型方正,后期空间利用率高;整个空间全明通透,采光良好,同时利于居住空间通风;卧室门朝向客厅或餐厅;各个功能区的尺寸比例规范,布局合理,能很好地满足日常功能需求,整体空间开阔,采光充足,居住舒适度好;公摊高于15%且低于25%,符合住宅公摊正常范围。

一期金奥公寓2-6层130㎡户型-1室2厅1卫1厨建筑面积130.00平米

待定

1室2厅1厨1卫

待定

暂无

暂无

130 m²

暂无

售罄

户型品鉴

整体户型方正,活动区域开阔,居住舒适度高;全明通透户型,居住舒适度较高,整个空间采光充足,利于后期居住;整体空间布局合理,能够保证动静分离和居室通风,方便使用;客厅、卧室、卫生间和厨房等主要功能间的尺寸以及比例适中,有利于采光和通风,居住起来舒适、方便;公摊高于15%且低于25%,符合住宅公摊正常范

一期金奥国际中心3层302户型-一期金奥国际中心3层302户型-1室2厅1卫1厨建筑面积130.00

待定

1室2厅1厨1卫

待定

暂无

暂无

130 m²

暂无

售罄

户型品鉴

暂无

一期金奥国际中心20层702上跃户型-2室2厅2卫1厨建筑面积180.00平米

待定

2室2厅1厨2卫

待定

暂无

暂无

180 m²

暂无

售罄

户型品鉴

各个空间户型方正,后期空间利用率高;整个空间采光很好,主卧和客厅均能够保证很好的采光,整个空间空气好。整个户型空间布局合理,方便后期生活。客厅、卧室、卫生间和厨房等主要功能间的尺寸以及比例适中,有利于采光和通风,居住起来舒适、方便;公摊高于15%且低于25%,符合住宅公摊正常范围。

我要咨询

一键领取最新楼盘信息!

订阅后金牌置业顾问将主动致电联系您并提供专业咨询服务,来电时您的真实号码将被隐藏

图片验证码