创意户型A-2室2厅1卫1厨建筑面积94.00平米

待定

2室2厅1厨1卫

待定

暂无

暂无

94 m²

暂无

售罄

户型品鉴

次要空间不方正;比较重要的空间无对外窗户;厨房门对着客厅,室内通风好,则无需顾虑油烟的困扰;客厅的面宽进深比不在标准范围内,电视柜和沙发等家具的摆放要仔细考量,以改善客厅舒适度;公摊高于15%且低于25%,符合住宅公摊正常范围。

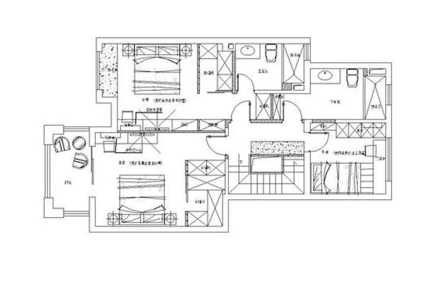
160平户型-3室1厅2卫1厨建筑面积160.00平米

待定

3室1厅1厨2卫

待定

暂无

暂无

160 m²

暂无

售罄

户型品鉴

主卧或客厅方正,其他空间不方正;户型不是南北通透,整体空间无穿堂风;比较重要的空间无对外窗户;整体空间布局合理,能够保证动静分离和居室通风,方便使用;各个功能区的尺寸比例规范,布局合理,能很好地满足日常功能需求,整体空间开阔,采光充足,居住舒适度好;公摊高于15%且低于25%,符合住宅公摊正常范围。

阳光户型B-B3-2室2厅1卫1厨建筑面积93.00平米

待定

2室2厅1厨1卫

待定

暂无

暂无

93 m²

暂无

售罄

户型品鉴

除主卧和客厅之外的其他空间不方正;比较重要的空间无对外窗户;居室布局合理,通风良好,动静分离,兼顾到了卧室和卫生间的私密性;各个功能区的尺寸比例规范,布局合理,能很好地满足日常功能需求,整体空间开阔,采光充足,居住舒适度好;公摊高于15%且低于25%,符合住宅公摊正常范围。

我要咨询

一键领取最新楼盘信息!

订阅后金牌置业顾问将主动致电联系您并提供专业咨询服务,来电时您的真实号码将被隐藏

图片验证码