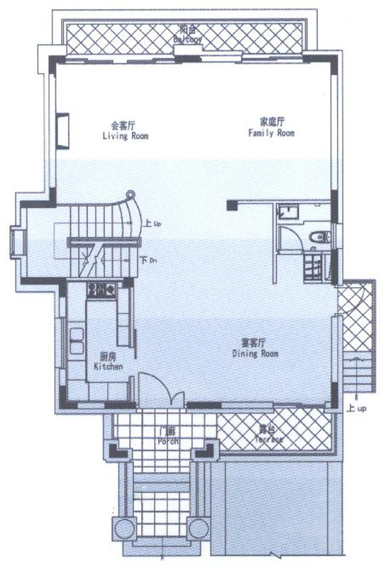
C2户型花园层平面图-7室3厅6卫1厨建筑面积442.00平米

待定

7室3厅1厨6卫

待定

暂无

暂无

442 m²

暂无

售罄

户型品鉴

次要空间不方正;整个空间全明通透,采光良好,同时利于居住空间通风;整体空间布局合理,能够保证动静分离和居室通风,方便使用;卧室厨卫等各个功能区的面积大小都比较合理,居住体验便利,整体舒适度高;公摊高于15%且低于25%,符合住宅公摊正常范围。

A户型一层-5室3厅5卫1厨建筑面积301.00平米

待定

5室3厅1厨5卫

待定

暂无

暂无

301 m²

暂无

售罄

户型品鉴

主卧或客厅方正,其他空间不方正;全明户型,各部分空间均有窗,可保证整体空间采光和通风,居住舒适度好;居室布局合理,通风良好,动静分离,兼顾到了卧室和卫生间的私密性;各个功能区的尺寸比例规范,布局合理,能很好地满足日常功能需求,整体空间开阔,采光充足,居住舒适度好;公摊高于15%且低于25%,符合住宅

C1户型一层-7室3厅6卫1厨建筑面积524.00平米

待定

7室3厅1厨6卫

待定

暂无

暂无

524 m²

暂无

售罄

户型品鉴

主卧或客厅方正,其他空间不方正;整个空间全明通透,采光良好,同时利于居住空间通风;整个户型空间布局合理,做到了干湿分离、动静分离,方便后期生活;客厅、卧室、卫生间和厨房等主要功能间的尺寸以及比例适中,有利于采光和通风,居住起来舒适、方便;公摊高于15%且低于25%,符合住宅公摊正常范围。

B户型一层-5室3厅5卫1厨建筑面积332.00平米

待定

5室3厅1厨5卫

待定

暂无

暂无

332 m²

暂无

售罄

户型品鉴

次要空间不方正;全明通透户型,居住舒适度较高,整个空间采光充足,利于后期居住;整个户型空间布局合理,做到了干湿分离、动静分离,方便后期生活;客厅、卧室、卫生间和厨房等主要功能间的尺寸以及比例适中,有利于采光和通风,居住起来舒适、方便;公摊高于15%且低于25%,符合住宅公摊正常范围。

我要咨询

一键领取最新楼盘信息!

订阅后金牌置业顾问将主动致电联系您并提供专业咨询服务,来电时您的真实号码将被隐藏

图片验证码