E区6号楼标准层b户型-2室2厅1卫1厨建筑面积92.95平米

待定

2室2厅1厨1卫

待定

暂无

暂无

92.95 m²

暂无

未知

户型品鉴

各个空间户型方正,方便室内家具布置;全明通透户型,居住舒适度较高,整个空间采光充足,利于后期居住;卧室进卫生间需要穿过餐厅或客厅;卧室厨卫等各个功能区的面积大小都比较合理,居住体验便利,整体舒适度高;

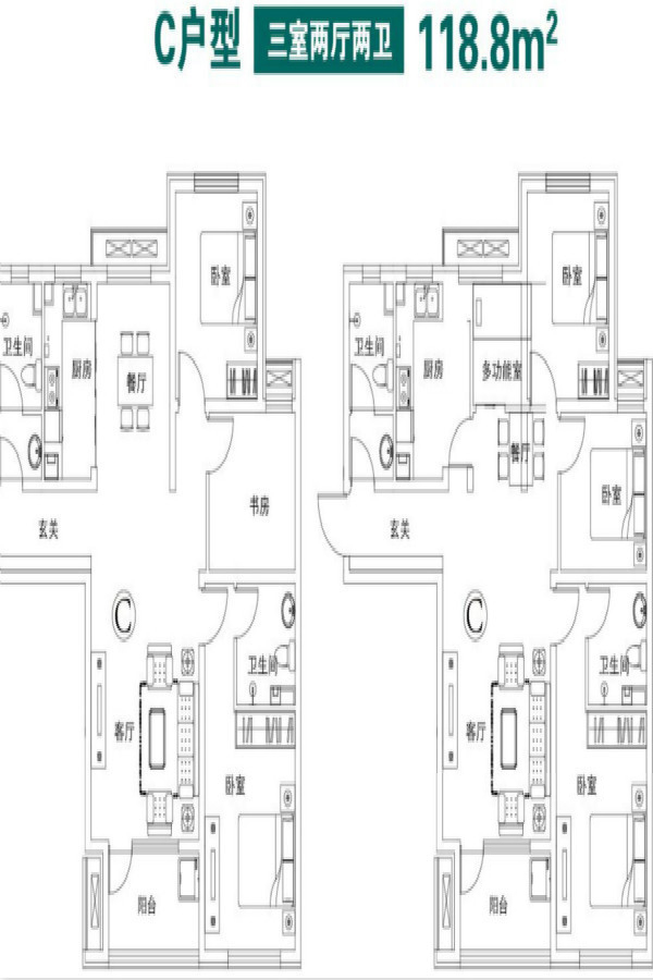
D区1#2#楼标准层c户型-3室2厅2卫1厨建筑面积118.80平米

待定

3室2厅1厨2卫

待定

暂无

暂无

118.8 m²

暂无

未知

户型品鉴

各个空间户型方正,方便室内家具布置;卫生间没有对外窗户,可通过加装排风机改善通风除湿;整个户型空间布局合理,做到了干湿分离、动静分离,方便后期生活;各个功能区的尺寸比例规范,布局合理,能很好地满足日常功能需求,整体空间开阔,采光充足,居住舒适度好;

D区1号楼标准层b户型-2室2厅1卫1厨建筑面积89.39平米

待定

2室2厅1厨1卫

待定

暂无

暂无

89.39 m²

暂无

未知

户型品鉴

整体户型方正,活动区域开阔,居住舒适度高;卫生间如没有窗子,可加管道通风,但是相对来说卫生间有窗户是好的情况,利于排湿,不会使湿气进到室内。卧室进卫生间需要穿过餐厅或客厅;客厅、卧室、卫生间和厨房等主要功能间的尺寸以及比例适中,有利于采光和通风,居住起来舒适、方便;

B区6号楼标准层C户型-3室2厅2卫1厨建筑面积138.34平米

待定

3室2厅1厨2卫

待定

暂无

暂无

138.34 m²

暂无

未知

户型品鉴

各个空间户型方正,方便室内家具布置;全明通透户型,居住舒适度较高,整个空间采光充足,利于后期居住;从卧室进卫生间需要穿过餐厅或客厅;各个功能区的尺寸比例规范,布局合理,能很好地满足日常功能需求,整体空间开阔,采光充足,居住舒适度好;

E区6号楼标准层C户型-3室2厅2卫1厨建筑面积131.79平米

待定

3室2厅1厨2卫

待定

暂无

暂无

131.79 m²

暂无

未知

户型品鉴

各个空间户型方正,方便室内家具布置;全明户型,各部分空间均有窗,可保证整体空间采光和通风,居住舒适度好;卧室进卫生间需要穿过餐厅或客厅;卧室厨卫等各个功能区的面积大小都比较合理,居住体验便利,整体舒适度高;

D区1#2#楼标准层A户型-2室2厅1卫1厨建筑面积89.90平米

待定

2室2厅1厨1卫

待定

暂无

暂无

89.9 m²

暂无

未知

户型品鉴

整体户型方正,活动区域开阔,居住舒适度高;整个空间全明通透,采光良好,同时利于居住空间通风;整体空间布局合理,能够保证动静分离和居室通风,方便使用;卧室厨卫等各个功能区的面积大小都比较合理,居住体验便利,整体舒适度高;

四期标准层B、D户型-2室2厅1卫1厨建筑面积95.80平米

待定

2室2厅1厨1卫

待定

暂无

暂无

95.8 m²

暂无

未知

户型品鉴

各个空间户型方正,后期空间利用率高;全明户型,各部分空间均有窗,可保证整体空间采光和通风,居住舒适度好;整个户型空间布局合理,做到了干湿分离、动静分离,方便后期生活;卧室厨卫等各个功能区的面积大小都比较合理,居住体验便利,整体舒适度高;公摊高于15%且低于25%,符合住宅公摊正常范围。

B区6号楼标准层B户型-2室2厅1卫1厨建筑面积101.92平米

待定

2室2厅1厨1卫

待定

暂无

暂无

101.92 m²

暂无

未知

户型品鉴

整体户型方正,活动区域开阔,居住舒适度高;整个空间全明通透,采光良好,同时利于居住空间通风;卧室进卫生间需要穿过餐厅或客厅;客厅、卧室、卫生间和厨房等主要功能间的尺寸以及比例适中,有利于采光和通风,居住起来舒适、方便;

B区6号楼标准层A户型-3室2厅2卫1厨建筑面积139.49平米

待定

3室2厅1厨2卫

待定

暂无

暂无

139.49 m²

暂无

未知

户型品鉴

各个空间户型方正,方便室内家具布置;全明通透户型,居住舒适度较高,整个空间采光充足,利于后期居住;从卧室进卫生间需要穿过餐厅或客厅;卧室厨卫等各个功能区的面积大小都比较合理,居住体验便利,整体舒适度高;

E区6号楼标准层a户型-3室2厅2卫1厨建筑面积131.02平米

待定

3室2厅1厨2卫

待定

暂无

暂无

131.02 m²

暂无

未知

户型品鉴

各个空间户型方正,后期空间利用率高;全明户型,各部分空间均有窗,可保证整体空间采光和通风,居住舒适度好;卧室进卫生间需要穿过餐厅或客厅;各个功能区的尺寸比例规范,布局合理,能很好地满足日常功能需求,整体空间开阔,采光充足,居住舒适度好;

我要咨询

一键领取最新楼盘信息!

订阅后金牌置业顾问将主动致电联系您并提供专业咨询服务,来电时您的真实号码将被隐藏

图片验证码