44.45平户型-1室2厅1卫1厨建筑面积44.45平米

待定

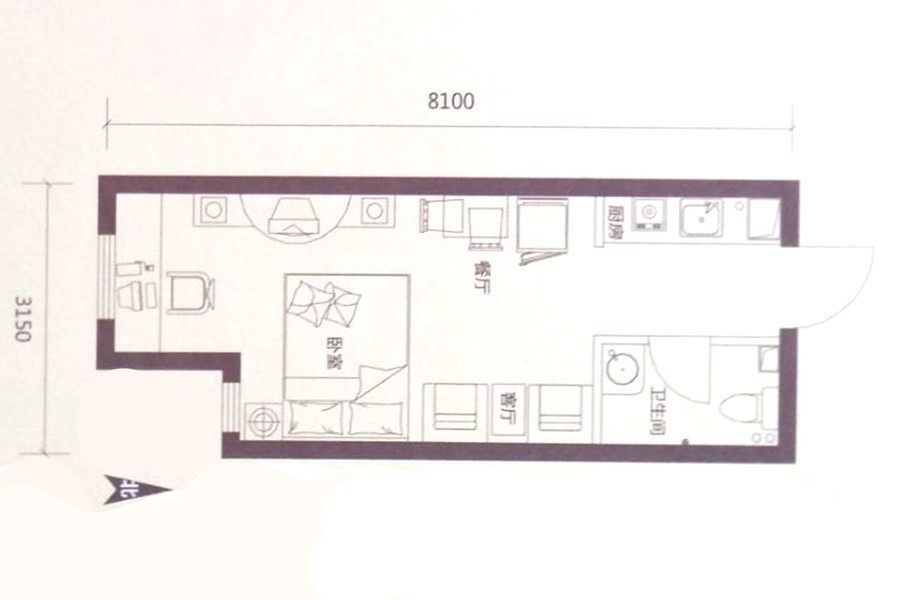
1室2厅1厨1卫

待定

暂无

暂无

44.45 m²

暂无

少量

户型品鉴

整体户型方正,活动区域开阔,居住舒适度高;户型不是南北通透,后期装修时可以考虑加装纱门改善通风;卫生间如没有窗子,可加管道通风,但是相对来说卫生间有窗户是好的情况,利于排湿,不会使湿气进到室内。整体空间布局合理,能够保证动静分离和居室通风,方便使用;客厅、卧室、卫生间和厨房等主要功能间的尺寸以及比例

36.85平户型-1室2厅1卫1厨建筑面积36.85平米

待定

1室2厅1厨1卫

待定

暂无

暂无

36.85 m²

暂无

少量

户型品鉴

作为主要活动区域,主卧或客厅不方正,后期需通过家具布置增加对空间的利用;卫生间没有对外窗户;整体空间布局合理,能够保证动静分离和居室通风,方便使用;各个功能区的尺寸比例规范,布局合理,能很好地满足日常功能需求,整体空间开阔,采光充足,居住舒适度好;

32.63平户型-1室1厅1卫1厨建筑面积32.63平米

待定

1室1厅1厨1卫

待定

暂无

暂无

32.63 m²

暂无

少量

户型品鉴

整体户型方正,活动区域开阔,居住舒适度高;客厅、主卧非南向或东向,室内采光问题可在装修时通过灯具布置进行改善;卫生间没有对外窗户,可通过加装排风机改善通风除湿;整体空间布局合理,能够保证动静分离和居室通风,方便使用;客厅、卧室、卫生间和厨房等主要功能间的尺寸以及比例适中,有利于采光和通风,居住起来舒

34.57平户型-1室2厅1卫1厨建筑面积34.57平米

待定

1室2厅1厨1卫

待定

暂无

暂无

34.57 m²

暂无

少量

户型品鉴

各个空间户型方正,方便室内家具布置;客厅、主卧非南向或东向;卫生间没有对外窗户;整体空间布局合理,能够保证动静分离和居室通风,方便使用;各个功能区的尺寸比例规范,布局合理,能很好地满足日常功能需求,整体空间开阔,采光充足,居住舒适度好;

我要咨询

一键领取最新楼盘信息!

订阅后金牌置业顾问将主动致电联系您并提供专业咨询服务,来电时您的真实号码将被隐藏

图片验证码