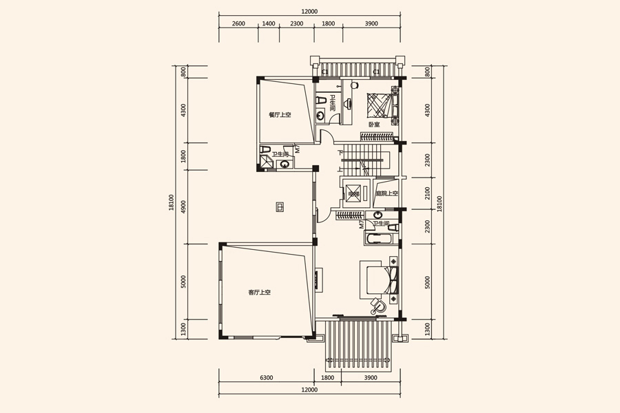
户型名称: 地上二层平面图-5室2厅5卫1厨建筑面积354.00平米
参考均价: 待定
户型: 5室2厅1厨5卫
参考总价: 待定
装修情况: 暂无
梯户情况: 暂无
建筑面积: 354 m²
赠送面积: 暂无
户型余量: 少量
户型品鉴
各个空间户型方正,后期空间利用率高;全明通透户型,居住舒适度较高,整个空间采光充足,利于后期居住;
所属楼盘
前海湖山壹号 售罄
低总价 大户型
宝安区-福永 354㎡
60000 元/平
我要咨询
一键领取最新楼盘信息!
订阅后金牌置业顾问将主动致电联系您并提供专业咨询服务,来电时您的真实号码将被隐藏
图片验证码