参考价格(均价/总价)
价格待定
建面
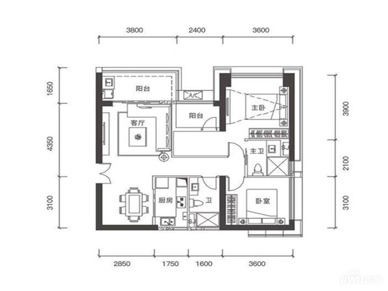
107㎡
预约看房
获取专属服务
开盘
暂无
户型
二居室(1)
预售许可证
暂无
广东省深圳市南山区蛇口南山区/蛇口/工业五路新世界·临海揽山御园
主力户型 (1) 查看更多
楼盘详情 查看更多
深圳市新世界集团有限公司
暂无
暂无
住宅(70年)
39567 m²
0
1880
为您推荐 查看更多
前海宸湾 在售
住宅 大户型
南山区-蛇口 109-143㎡
价格待定
晗山悦海城 在售
住宅 大户型 生态宜居
南山区-蛇口 90-197㎡
96000 元/平起
招商渔二村旧改 待售
住宅 现房 公交直达
南山区-蛇口
价格待定
金众云山海公馆 待售
住宅 配套齐全 生态宜居
南山区-蛇口 111-174㎡
价格待定
海境界二期 在售
住宅 大户型 医疗配套
南山区-蛇口 140-190㎡
103000 元/平起
半岛城邦三期 在售
住宅 大户型 配套齐全
南山区-蛇口 107-169㎡
130000 元/平起
荣村小区 在售
住宅 小户型 医疗配套
南山区-蛇口 40-52㎡
价格待定
深业世纪山谷·世家 在售
公寓 成熟商圈 大户型
南山区-沙河 67-386㎡
价格待定
绿景白石洲 在售
住宅 精选 甄选好房
南山区-华侨城 110-187㎡
100000 元/平起
前海宸湾 在售
住宅 装修房 大户型
南山区-招商 109-143㎡
104000 元/平起
页面中所涉及的面积,如无特殊说明均为建筑面积,所涉及装修情况,标准以合同为准,页面中的图片仅供参考,请以售楼处实际情况为准。
领取优惠
一键锁定"签约99折送车位"购房优惠!
成功领取活动优惠
您已成功领取了该活动优惠,我们会尽快联系您
我要咨询
一键领取最新楼盘信息!
订阅后金牌置业顾问将主动致电联系您并提供专业咨询服务,来电时您的真实号码将被隐藏
图片验证码