参考价格(均价/总价)
52000元 / 447万
建面
86-118㎡
预约看房
获取专属服务
开盘
暂无
户型
三居室(2)、 四居室(1)
预售许可证
暂无
广东省深圳市龙华区龙华壹湾府营销中心
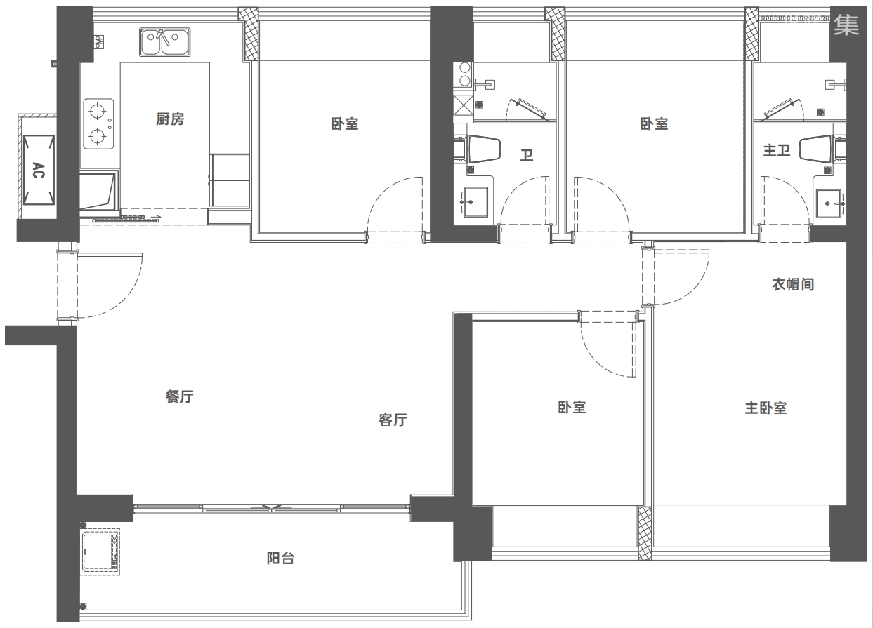
主力户型 (3) 查看更多
楼盘详情 查看更多
深圳市星时代投资发展有限公司
暂无
暂无
住宅(70年)
暂无
暂无
暂无
为您推荐 查看更多
华侨城四海华亭龙胜云坊 在售
住宅 小户型 装修房
龙华区-龙华 28-112㎡
61000 元/平起
深业颐樾府 在售
住宅 小户型 成熟商圈
龙华区-龙华 87㎡
72000 元/平起
华侨城龙胜云坊 在售
公寓 车位充足 配套齐全
龙华区-龙华 24-55㎡
64600 元/平起
星悦云邸 待售
住宅 生态宜居 多轨交汇
龙华区-龙华 95-124㎡
价格待定
联发臻著雅居 在售
住宅 车位充足 品牌地产
龙华区-龙华 81-91㎡
56700 元/平起
富基云珑府 在售
住宅 精选 低总价
龙华区-龙华 64-155㎡
54000 元/平起
卓越柏奕府 在售
住宅 新房优惠 装修房
龙华区-龙华 108-125㎡
75000 元/平起
万福花园 在售
住宅
龙华区-龙华 86㎡
价格待定
鸿荣源·壹成中心花园 在售
住宅 小户型 配套齐全
龙华区-龙华 93㎡
60000 元/平起
中海闻华里住宅 在售
住宅 装修房 小户型
龙华区-龙华 95㎡
73800 元/平起
页面中所涉及的面积,如无特殊说明均为建筑面积,所涉及装修情况,标准以合同为准,页面中的图片仅供参考,请以售楼处实际情况为准。
领取优惠
一键锁定"签约99折送车位"购房优惠!
成功领取活动优惠
您已成功领取了该活动优惠,我们会尽快联系您
我要咨询
一键领取最新楼盘信息!
订阅后金牌置业顾问将主动致电联系您并提供专业咨询服务,来电时您的真实号码将被隐藏
图片验证码