125平

待定

3室2厅1厨2卫

待定

毛坯

暂无

125 m²

暂无

未知

户型品鉴

【客厅】客厅朝南,室内光线充足 【卧室】两个卧室朝南,且配有飘窗 【餐厅】餐厨相连,减少家务动线 优势描述 户型方正,面宽充足,便于采光

127平

待定

3室2厅1厨2卫

待定

毛坯

暂无

127 m²

暂无

未知

户型品鉴

暂无

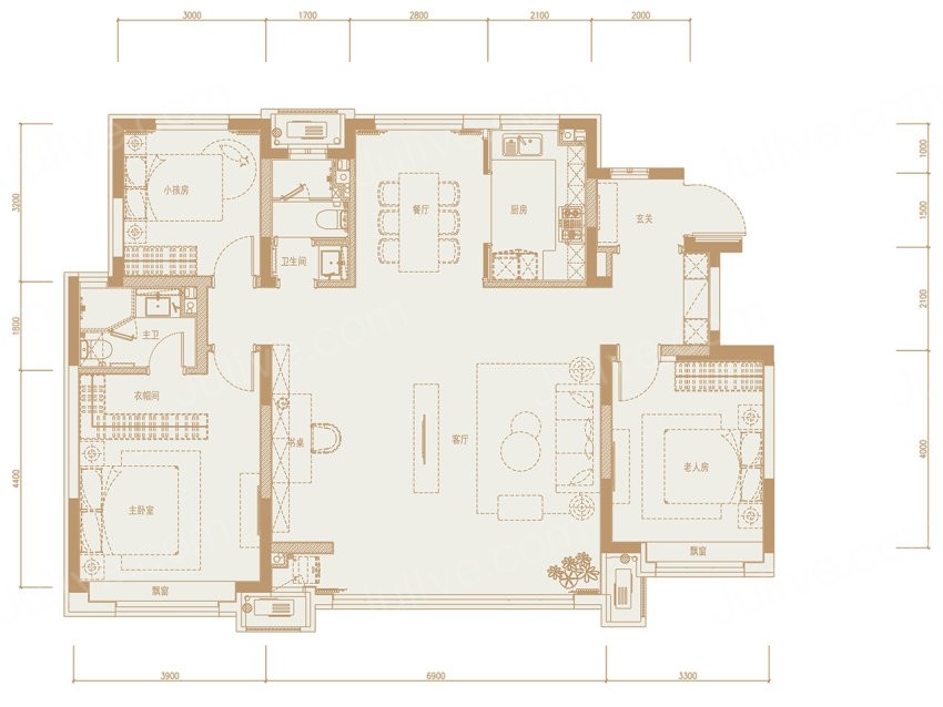
140平

待定

3室2厅1厨2卫

待定

毛坯

暂无

140 m²

暂无

未知

户型品鉴

【客厅】客厅朝南,室内光线充足 【卧室】两个卧室朝南,且配有飘窗 【餐厅】餐厨相连,减少家务动线 优势描述 户型方正,面宽充足,便于采光

我要咨询

一键领取最新楼盘信息!

订阅后金牌置业顾问将主动致电联系您并提供专业咨询服务,来电时您的真实号码将被隐藏

图片验证码