城市样板间·江序浅湾
搜狐焦点设计武汉站 2026-02-28 15:37:00
设计作为价值链的前端,已成为家居产业全面升级的强劲推动力。
集聚设计力量,激发家居行业新势能,湖北省室内设计行业协会与荆楚名企名师《师说》报道组一起,联合搜狐家居、搜狐焦点设计武汉新闻中心“致敬荆楚设计力量”推出了2026年度《城市样板间》活动,以“点亮设计之光,成就美好生活”为主题,将陆续发布一批优秀的住宅设计公司及设计师作品,以飨网友。
冯茜 冯茜设计创始人,湖北省室内设计行业协会会员。
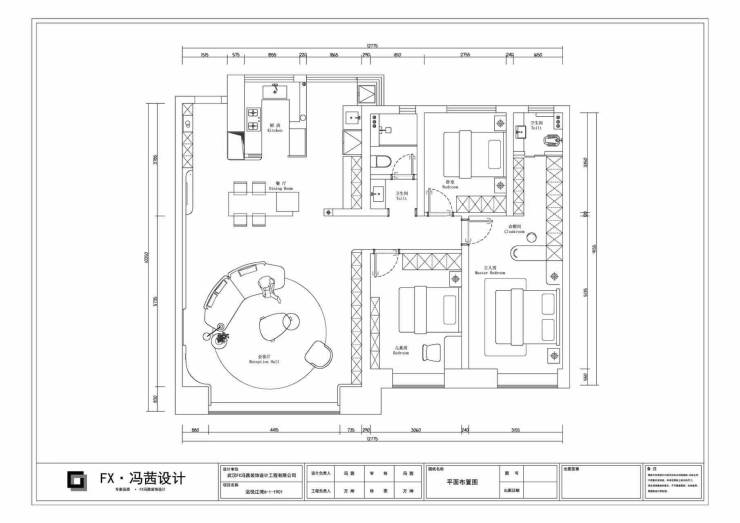
地址:武汉电建洺悦江湾
面积:165平
本项目为160㎡江景精装房改造,以治愈系生活为核心,摒弃繁复装饰,用大面积浅色系奠定空间基调,结合柔和弧形线条与江景自然优势,重构现代优雅的居住美学。





设计保留精装房基础结构,重点优化色彩、线条与光影关系。整体以米白、浅灰、暖杏色为主,弱化视觉压迫感,让自然光与江面光影成为空间主角。摒弃尖锐棱角,全屋运用温润弧形元素——吊顶圆角、墙面弧面、家具柔边,串联起客厅、餐厅、卧室等公共与私密区域,消解建筑硬朗感,营造包裹式治愈氛围。




功能上兼顾艺术感与实用性,在浅色系基底上,通过低饱和度软装、细腻材质肌理提升质感。超大江景视野不做过度遮挡,让自然景观与室内浅柔色调相融,实现“室内治愈、室外壮阔”的空间对话。




整体设计以极简笔触塑造优雅艺术气质,弱化装饰、强化情绪,打造兼具舒适度与高级感的居住空间,让归家即是放松与治愈。
供稿:湖北省室内设计行业协会