参考价格(均价/总价)
价格待定
建面
140-220㎡
预约看房
获取专属服务
开盘
暂无
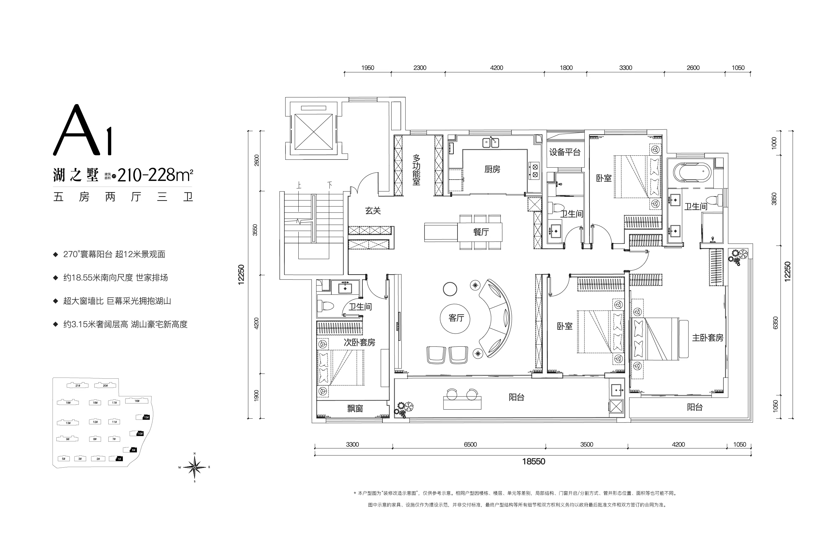
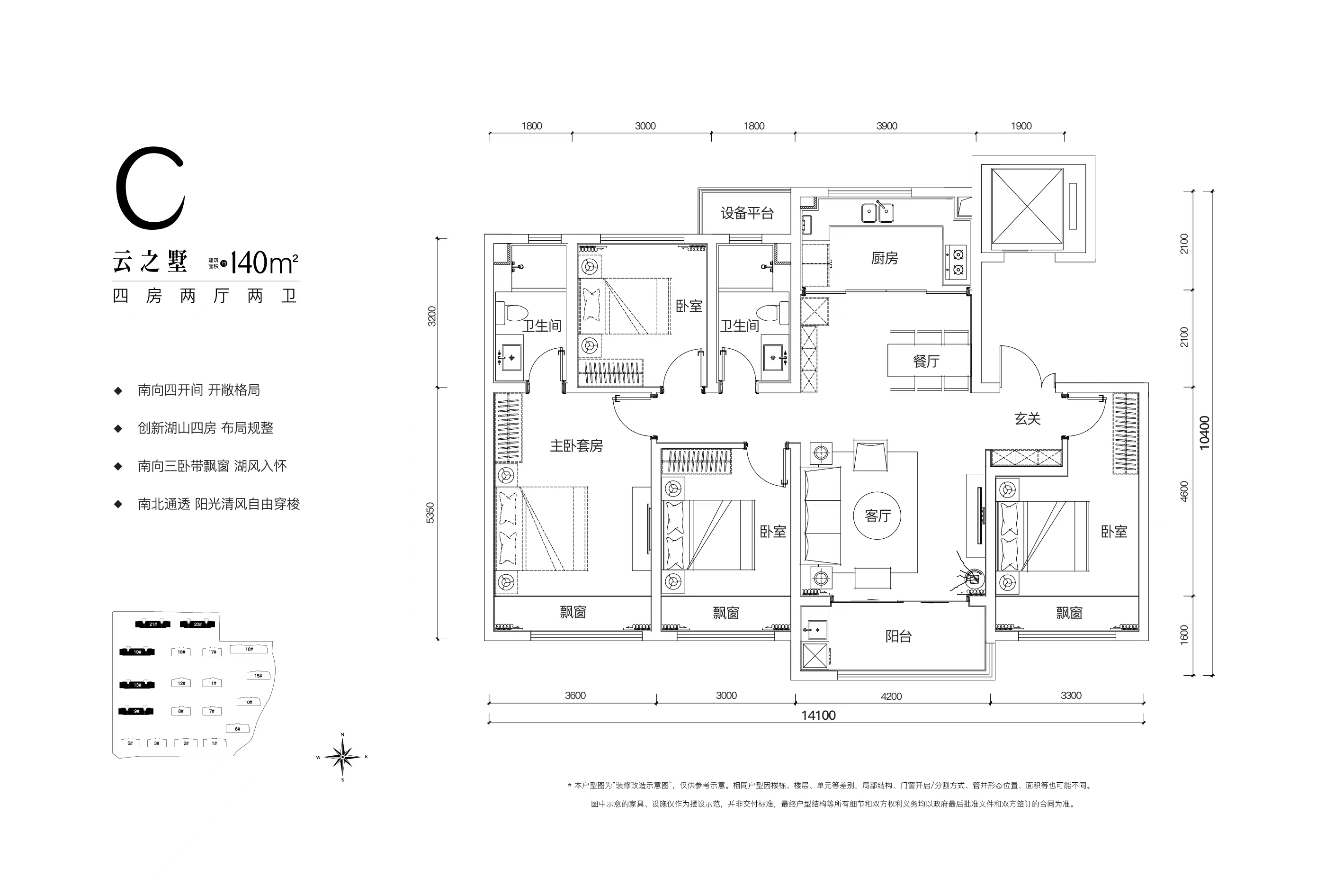
户型
四居室(2)、 五居室(2)
预售许可证
暂无
安徽省芜湖市鸠江区官陡街道芜湖市鸠江区苏宁环球大酒店西侧100米
主力户型 (4) 查看更多
楼盘详情 查看更多
芜湖星轩房地产开发有限公司
暂无
暂无
住宅(70年)
58280.74 m²
暂无
暂无
为您推荐 查看更多
伟星玖都荟 在售
住宅 大户型 生态宜居
鸠江区-官陡街道 126-164㎡
18247 元/平起
伟星天空之城 在售
住宅 生态宜居 成熟商圈
鸠江区-万春街道 100-123㎡
14500 元/平起
宝能睿城 在售
住宅 生态宜居 品牌地产
鸠江区-沈巷镇 89-126㎡
5500 元/平起
中梁旭辉铂悦滨江 在售
住宅 大户型 生态宜居
弋江区-利民路街道 128-141㎡
19000 元/平起
伟星印江澜 在售
住宅 大户型 生态宜居
弋江区-马塘街道 100-140㎡
16500 元/平起
熙华府 在售
住宅 大户型 生态宜居
三山区-保定街道 105-137㎡
6800 元/平起
九里香溪 在售
住宅 生态宜居 成熟商圈
芜湖县 88-89㎡
价格待定
伟星·国樾 待售
住宅 精选 车位充足
弋江区-马塘街道 94-127㎡
18000 元/平起
芜湖中房沚津府 在售
住宅 大户型 生态宜居
芜湖县 120-138㎡
5700 元/平起
宜居东城上品 在售
住宅 大户型 车位充足
芜湖县-湾沚镇 101-131㎡
价格待定
页面中所涉及的面积,如无特殊说明均为建筑面积,所涉及装修情况,标准以合同为准,页面中的图片仅供参考,请以售楼处实际情况为准。
领取优惠
一键锁定"签约99折送车位"购房优惠!
成功领取活动优惠
您已成功领取了该活动优惠,我们会尽快联系您
我要咨询
一键领取最新楼盘信息!
订阅后金牌置业顾问将主动致电联系您并提供专业咨询服务,来电时您的真实号码将被隐藏
图片验证码