参考价格(均价/总价)
13000元 / 437万
建面
336.67-394.12㎡
预约看房
获取专属服务
开盘
暂无
户型
五居室(2)
预售许可证
暂无
陕西省西安市雁塔区陕西省-西安市-雁塔区
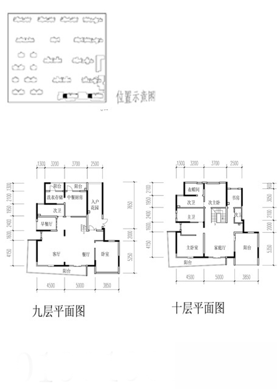
主力户型 (2) 查看更多
楼盘详情 查看更多
陕西金地佳和置业有限公司
暂无
暂无
住宅(70年)
800000 m²
0
5000
为您推荐 查看更多
西安雁鸣墅语 在售
住宅 低密度 现房
雁塔区 407.96-470㎡
18700 元/平起
万科东望 待售
住宅 品牌地产
雁塔区-等驾坡街道 110㎡
18000 元/平起
保利•云谷天汇 待售
住宅 大户型 品牌地产
雁塔区-鱼化寨街道 143㎡
27000 元/平起
中铁立丰国际广场 待售
住宅 大户型 小户型
雁塔区 32.17-135㎡
7800 元/平起
唐延公馆 在售
住宅 配套齐全 生态宜居
雁塔区 36-100.22㎡
17000 元/平起
中航·华府 待售
住宅 小户型 成熟商圈
雁塔区 77-109㎡
11000 元/平起
天伦御城龙脉 在售
住宅 大户型 小户型
雁塔区 58.38-146.61㎡
12000 元/平起
拉克雷公馆 待售
住宅 大户型 小户型
雁塔区 40-166㎡
13000 元/平起
中国铁建·万科翡翠国际峰荟 待售
住宅 小户型
雁塔区-曲江街道 80-105㎡
价格待定
曲江·国风世家 待售
住宅 大户型 生态宜居
雁塔区-曲江街道 88.9-141.28㎡
价格待定
页面中所涉及的面积,如无特殊说明均为建筑面积,所涉及装修情况,标准以合同为准,页面中的图片仅供参考,请以售楼处实际情况为准。
领取优惠
一键锁定"签约99折送车位"购房优惠!
成功领取活动优惠
您已成功领取了该活动优惠,我们会尽快联系您
我要咨询
一键领取最新楼盘信息!
订阅后金牌置业顾问将主动致电联系您并提供专业咨询服务,来电时您的真实号码将被隐藏
图片验证码