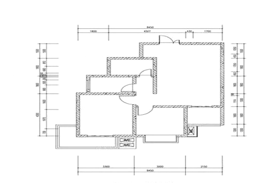
23、25#B户型-2室2厅1卫1厨建筑面积86.00平米

待定

2室2厅1厨1卫

待定

暂无

暂无

86 m²

暂无

未知

户型品鉴

各个空间户型方正,方便室内家具布置;南北不通透的户型,后期居住时常开门通风换气即可;居室布局合理,通风良好,动静分离,兼顾到了卧室和卫生间的私密性;卧室厨卫等各个功能区的面积大小都比较合理,居住体验便利,整体舒适度高;公摊高于15%且低于25%,符合住宅公摊正常范围。

8、9、10号楼D户型-2室2厅1卫1厨建筑面积83.63平米

待定

2室2厅1厨1卫

待定

暂无

暂无

83.63 m²

暂无

未知

户型品鉴

各个空间户型方正,后期空间利用率高;户型不是南北通透,整体空间无穿堂风;居室布局合理,通风良好,动静分离,兼顾到了卧室和卫生间的私密性;卧室厨卫等各个功能区的面积大小都比较合理,居住体验便利,整体舒适度高;公摊高于15%且低于25%,符合住宅公摊正常范围。

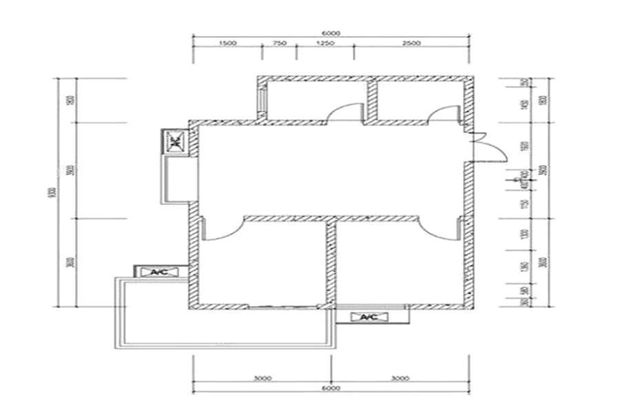
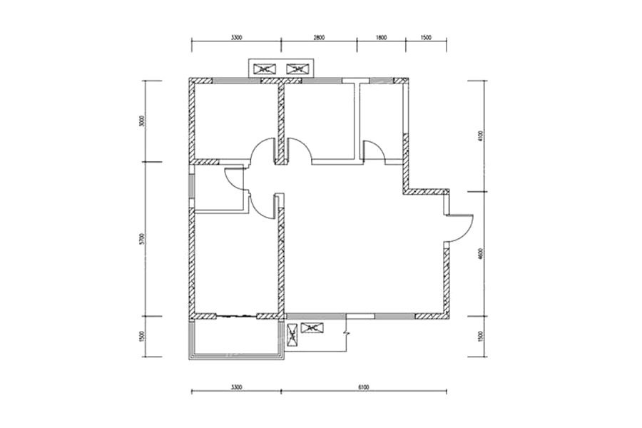
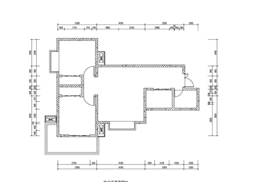
6-B户型-2室2厅1卫1厨建筑面积70.00平米

待定

2室2厅1厨1卫

待定

暂无

暂无

70 m²

暂无

未知

户型品鉴

各个空间户型方正,方便室内家具布置;南北不通透的户型,后期居住时常开门通风换气即可;从卧室进卫生间需要穿过餐厅或客厅;厨房门对着客厅,室内通风好,则无需顾虑油烟的困扰;各个功能区的尺寸比例规范,布局合理,能很好地满足日常功能需求,整体空间开阔,采光充足,居住舒适度好;公摊高于15%且低于25%,符合

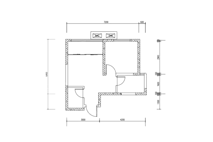
8、9、10号楼A户型-1室1厅1卫1厨建筑面积49.34平米

待定

1室1厅1厨1卫

待定

暂无

暂无

49.34 m²

暂无

未知

户型品鉴

各个空间户型方正,方便室内家具布置;客厅、主卧非南向或东向;南北不通透的户型,后期居住时常开门通风换气即可;卫生间没有对外窗户;卧室作为休息区域,门朝向客厅或餐厅时,私密性一般;各个功能区的尺寸比例规范,布局合理,能很好地满足日常功能需求,整体空间开阔,采光充足,居住舒适度好;公摊高于15%且低于2

4-104户型-2室2厅1卫1厨建筑面积67.00平米

待定

2室2厅1厨1卫

待定

暂无

暂无

67 m²

暂无

未知

户型品鉴

各个空间户型方正,方便室内家具布置;户型不是南北通透,整体空间无穿堂风;厨房门朝向客厅,能加装门即可规避油烟对客厅的影响;各个功能区的尺寸比例规范,布局合理,能很好地满足日常功能需求,整体空间开阔,采光充足,居住舒适度好;公摊高于15%且低于25%,符合住宅公摊正常范围。

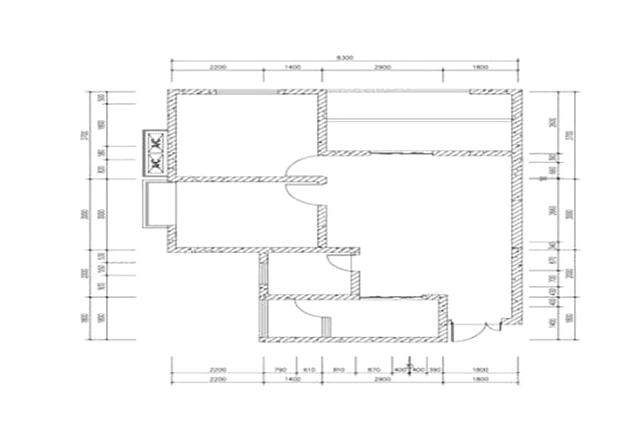
4-C户型-2室2厅1卫1厨建筑面积89.00平米

待定

2室2厅1厨1卫

待定

暂无

暂无

89 m²

暂无

未知

户型品鉴

各个空间户型方正,后期空间利用率高;客厅、主卧非南向或东向;南北不通透的户型,后期居住时常开门通风换气即可;卧室进卫生间需要穿过餐厅或客厅;客厅、卧室、卫生间和厨房等主要功能间的尺寸以及比例适中,有利于采光和通风,居住起来舒适、方便;公摊高于15%且低于25%,符合住宅公摊正常范围。

4-B户型-2室2厅1卫1厨建筑面积83.00平米

待定

2室2厅1厨1卫

待定

暂无

暂无

83 m²

暂无

未知

户型品鉴

各个空间户型方正,后期空间利用率高;全明户型,各部分空间均有窗,可保证整体空间采光和通风,居住舒适度好;卧室进卫生间需要穿过餐厅或客厅;客厅、卧室、卫生间和厨房等主要功能间的尺寸以及比例适中,有利于采光和通风,居住起来舒适、方便;公摊高于15%且低于25%,符合住宅公摊正常范围。

6-1户型-2室2厅2卫1厨建筑面积83.00平米

待定

2室2厅1厨2卫

待定

暂无

暂无

83 m²

暂无

未知

户型品鉴

各个空间户型方正,后期空间利用率高;户型不是南北通透,整体空间无穿堂风;入户门进厨房需要穿过客厅;各个功能区的尺寸比例规范,布局合理,能很好地满足日常功能需求,整体空间开阔,采光充足,居住舒适度好;公摊高于15%且低于25%,符合住宅公摊正常范围。

13、14#B户型-1室1厅1卫1厨建筑面积49.15平米

待定

1室1厅1厨1卫

待定

暂无

暂无

49.15 m²

暂无

未知

户型品鉴

各个空间户型方正,后期空间利用率高;南北不通透的户型,后期居住时常开门通风换气即可;整个户型空间布局合理,做到了干湿分离、动静分离,方便后期生活;各个功能区的尺寸比例规范,布局合理,能很好地满足日常功能需求,整体空间开阔,采光充足,居住舒适度好;公摊高于15%且低于25%,符合住宅公摊正常范围。

8、9、10号楼C户型-2室2厅1卫1厨建筑面积72.23平米

待定

2室2厅1厨1卫

待定

暂无

暂无

72.23 m²

暂无

未知

户型品鉴

整体户型方正,活动区域开阔,居住舒适度高;南北不通透的户型,后期居住时常开门通风换气即可;居室布局合理,通风良好,动静分离,兼顾到了卧室和卫生间的私密性;卧室厨卫等各个功能区的面积大小都比较合理,居住体验便利,整体舒适度高;公摊高于15%且低于25%,符合住宅公摊正常范围。

6-C户型-2室2厅1卫1厨建筑面积85.00平米

待定

2室2厅1厨1卫

待定

暂无

暂无

85 m²

暂无

未知

户型品鉴

整体户型方正,活动区域开阔,居住舒适度高;户型不是南北通透,整体空间无穿堂风;卧室作为休息区域,门朝向客厅或餐厅时,私密性一般;卫生间门朝向主要活动区域;各个功能区的尺寸比例规范,布局合理,能很好地满足日常功能需求,整体空间开阔,采光充足,居住舒适度好;公摊高于15%且低于25%,符合住宅公摊正常范

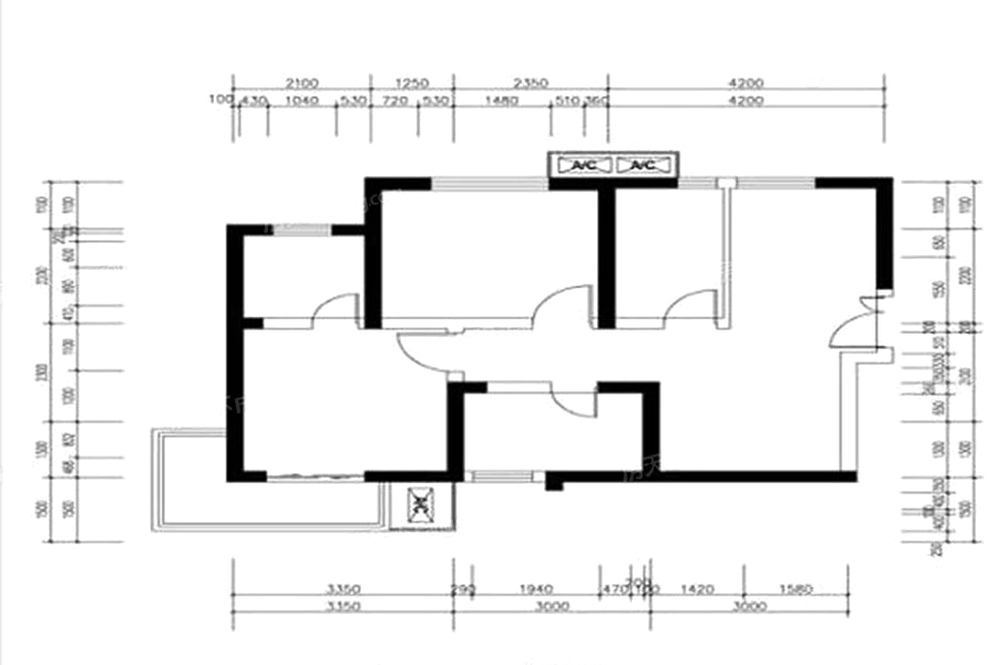
8、9、10号楼B户型-2室2厅1卫1厨建筑面积84.64平米

待定

2室2厅1厨1卫

待定

暂无

暂无

84.64 m²

暂无

未知

户型品鉴

整体户型方正,活动区域开阔,居住舒适度高;户型不是南北通透,后期装修时可以考虑加装纱门改善通风;整体空间布局合理,能够保证动静分离和居室通风,方便使用;各个功能区的尺寸比例规范,布局合理,能很好地满足日常功能需求,整体空间开阔,采光充足,居住舒适度好;公摊高于15%且低于25%,符合住宅公摊正常范围

6-A户型-3室2厅2卫1厨建筑面积113.00平米

待定

3室2厅1厨2卫

待定

暂无

暂无

113 m²

暂无

未知

户型品鉴

各个空间户型方正,方便室内家具布置;户型不是南北通透,后期装修时可以考虑加装纱门改善通风;厨房门朝向客厅,装修时要侧重考虑除油烟的措施;各个功能区的尺寸比例规范,布局合理,能很好地满足日常功能需求,整体空间开阔,采光充足,居住舒适度好;公摊高于15%且低于25%,符合住宅公摊正常范围。

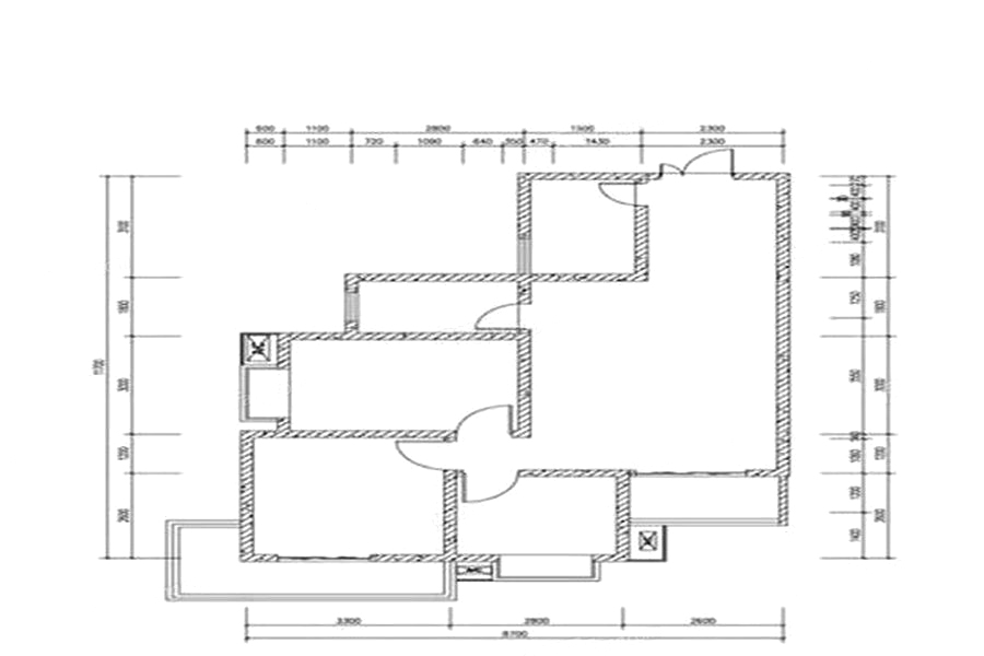
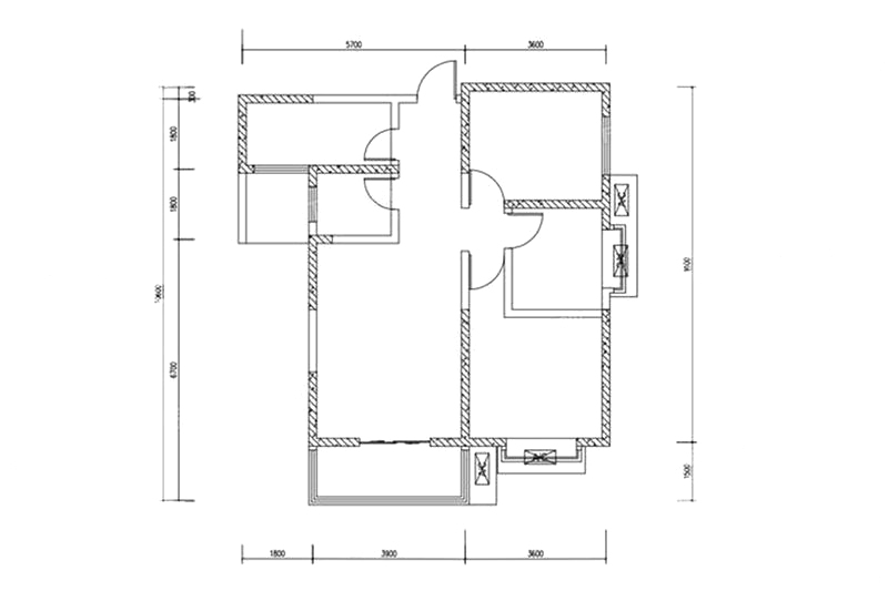
23、25#A户型-3室2厅2卫1厨建筑面积112.00平米

待定

3室2厅1厨2卫

待定

暂无

暂无

112 m²

暂无

未知

户型品鉴

各个空间户型方正,后期空间利用率高;全明户型,各部分空间均有窗,可保证整体空间采光和通风,居住舒适度好;整个户型空间布局合理,做到了干湿分离、动静分离,方便后期生活;客厅、卧室、卫生间和厨房等主要功能间的尺寸以及比例适中,有利于采光和通风,居住起来舒适、方便;公摊高于15%且低于25%,符合住宅公摊

13、14#A户型-3室2厅1卫1厨建筑面积105.95平米

待定

3室2厅1厨1卫

待定

暂无

暂无

105.95 m²

暂无

未知

户型品鉴

整体户型方正,活动区域开阔,居住舒适度高;整个空间全明通透,采光良好,同时利于居住空间通风;居室布局合理,通风良好,动静分离,兼顾到了卧室和卫生间的私密性;卧室厨卫等各个功能区的面积大小都比较合理,居住体验便利,整体舒适度高;公摊高于15%且低于25%,符合住宅公摊正常范围。

13、14#C户型-3室2厅1卫1厨建筑面积100.17平米

待定

3室2厅1厨1卫

待定

暂无

暂无

100.17 m²

暂无

未知

户型品鉴

整体户型方正,活动区域开阔,居住舒适度高;户型不是南北通透,后期装修时可以考虑加装纱门改善通风;整个户型空间布局合理,做到了干湿分离、动静分离,方便后期生活;各个功能区的尺寸比例规范,布局合理,能很好地满足日常功能需求,整体空间开阔,采光充足,居住舒适度好;公摊高于15%且低于25%,符合住宅公摊正

4-A户型-3室2厅1卫1厨建筑面积99.00平米

待定

3室2厅1厨1卫

待定

暂无

暂无

99 m²

暂无

未知

户型品鉴

各个空间户型方正,方便室内家具布置;户型不是南北通透,整体空间无穿堂风;卧室进卫生间需要穿过餐厅或客厅;卧室厨卫等各个功能区的面积大小都比较合理,居住体验便利,整体舒适度高;公摊高于15%且低于25%,符合住宅公摊正常范围。

我要咨询

一键领取最新楼盘信息!

订阅后金牌置业顾问将主动致电联系您并提供专业咨询服务,来电时您的真实号码将被隐藏

图片验证码