公寓1#E户型-1室1厅1卫1厨建筑面积52.54平米

待定

1室1厅1厨1卫

待定

暂无

暂无

52.54 m²

暂无

未知

户型品鉴

各个空间户型方正,后期空间利用率高;全明通透户型,居住舒适度较高,整个空间采光充足,利于后期居住;卧室进卫生间需要穿过餐厅或客厅;各个功能区的尺寸比例规范,布局合理,能很好地满足日常功能需求,整体空间开阔,采光充足,居住舒适度好;公摊高于25%。

公寓1#A、01户型-2室2厅1卫1厨建筑面积94.11平米

待定

2室2厅1厨1卫

待定

暂无

暂无

94.11 m²

暂无

未知

户型品鉴

各个空间户型方正,后期空间利用率高;整个空间全明通透,采光良好,同时利于居住空间通风;卧室进卫生间需要穿过餐厅或客厅;卫生间门朝向主要活动区域;卧室厨卫等各个功能区的面积大小都比较合理,居住体验便利,整体舒适度高;公摊高于25%。

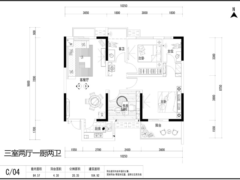
公寓1#C、04户型-3室2厅2卫1厨建筑面积104.92平米

待定

3室2厅1厨2卫

待定

暂无

暂无

104.92 m²

暂无

未知

户型品鉴

整体户型方正,活动区域开阔,居住舒适度高;客厅、主卧非南向或东向;卫生间门朝向主要活动区域,私密性一般;客厅、卧室、卫生间和厨房等主要功能间的尺寸以及比例适中,有利于采光和通风,居住起来舒适、方便;公摊高于15%且低于25%,符合住宅公摊正常范围。

公寓1#F户型-1室0厅1卫0厨建筑面积45.01平米

待定

1室0厅0厨1卫

待定

暂无

暂无

45.01 m²

暂无

未知

户型品鉴

各个空间户型方正,方便室内家具布置;整个空间全明通透,采光良好,同时利于居住空间通风;从卧室进卫生间需要穿过餐厅或客厅;客厅、卧室、卫生间和厨房等主要功能间的尺寸以及比例适中,有利于采光和通风,居住起来舒适、方便;公摊高于25%。

公寓1#D、05户型-1室0厅1卫0厨建筑面积48.14平米

待定

1室0厅0厨1卫

待定

暂无

暂无

48.14 m²

暂无

未知

户型品鉴

整体户型方正,活动区域开阔,居住舒适度高;卧室进卫生间需要穿过餐厅或客厅;卧室厨卫等各个功能区的面积大小都比较合理,居住体验便利,整体舒适度高;公摊高于25%。

公寓1#B1、02户型-公寓1#B1、02户型-2室2厅1卫1厨建筑面积88.23平米

待定

2室2厅1厨1卫

待定

暂无

暂无

88.23 m²

暂无

未知

户型品鉴

暂无

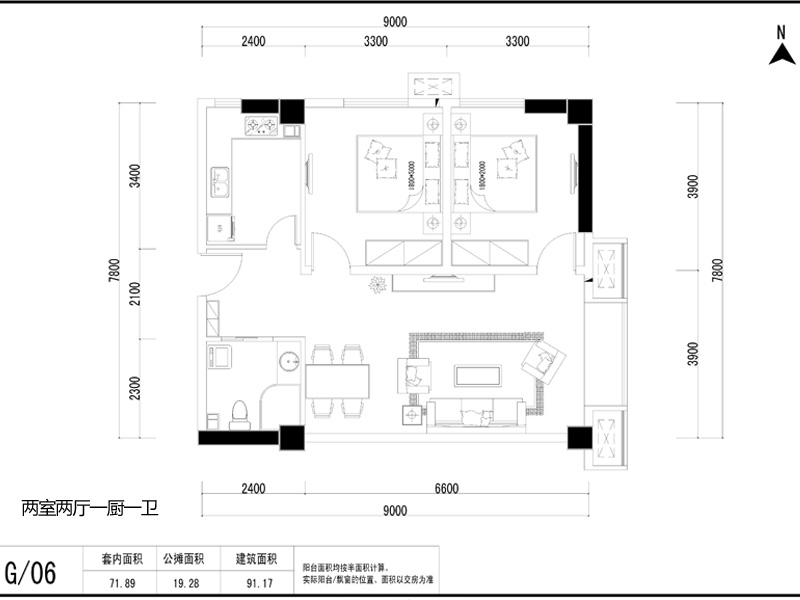
公寓1#G、06户型-2室2厅1卫1厨建筑面积91.17平米

待定

2室2厅1厨1卫

待定

暂无

暂无

91.17 m²

暂无

未知

户型品鉴

整体户型方正,活动区域开阔,居住舒适度高;全明通透户型,居住舒适度较高,整个空间采光充足,利于后期居住;卧室进卫生间需要穿过餐厅或客厅;卧室门朝向客厅或餐厅;卧室厨卫等各个功能区的面积大小都比较合理,居住体验便利,整体舒适度高;公摊高于25%。

公寓1#B2、03户型-2室2厅1卫1厨建筑面积88.23平米

待定

2室2厅1厨1卫

待定

暂无

暂无

88.23 m²

暂无

未知

户型品鉴

整体户型方正,活动区域开阔,居住舒适度高;全明通透户型,居住舒适度较高,整个空间采光充足,利于后期居住;卧室进卫生间需要穿过餐厅或客厅;卧室作为休息区域,门朝向客厅或餐厅时,私密性一般;卧室厨卫等各个功能区的面积大小都比较合理,居住体验便利,整体舒适度高;公摊高于15%且低于25%,符合住宅公摊正常

我要咨询

一键领取最新楼盘信息!

订阅后金牌置业顾问将主动致电联系您并提供专业咨询服务,来电时您的真实号码将被隐藏

图片验证码