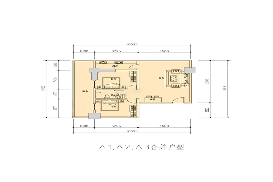
合并户型2-2室2厅1卫1厨建筑面积117.00平米

待定

2室2厅1厨1卫

待定

暂无

暂无

117 m²

暂无

未知

户型品鉴

各个空间户型方正,方便室内家具布置;南北不通透的户型,后期居住时常开门通风换气即可;卫生间门朝向主要活动区域;。客厅、卧室、卫生间和厨房等主要功能间的尺寸以及比例适中,有利于采光和通风,居住起来舒适、方便;公摊高于25%。

公寓A2-1室1厅1卫1厨建筑面积28.87平米

待定

1室1厅1厨1卫

待定

暂无

暂无

28.87 m²

暂无

未知

户型品鉴

各个空间户型方正,方便室内家具布置;南北不通透的户型,后期居住时常开门通风换气即可;卫生间门朝向主要活动区域,私密性一般;客厅、卧室、卫生间和厨房等主要功能间的尺寸以及比例适中,有利于采光和通风,居住起来舒适、方便;公摊高于25%。

公寓A3-1室1厅1卫1厨建筑面积37.15平米

待定

1室1厅1厨1卫

待定

暂无

暂无

37.15 m²

暂无

未知

户型品鉴

各个空间户型方正,后期空间利用率高;南北不通透的户型,后期居住时常开门通风换气即可;卫生间门朝向主要活动区域;卧室厨卫等各个功能区的面积大小都比较合理,居住体验便利,整体舒适度高;公摊高于25%。

公寓A4-1室1厅1卫1厨建筑面积44.66平米

待定

1室1厅1厨1卫

待定

暂无

暂无

44.66 m²

暂无

未知

户型品鉴

各个空间户型方正,后期空间利用率高;户型不是南北通透,后期装修时可以考虑加装纱门改善通风;卫生间门朝向主要活动区域,私密性一般;客厅、卧室、卫生间和厨房等主要功能间的尺寸以及比例适中,有利于采光和通风,居住起来舒适、方便;公摊高于25%。

7#、10#B户型-4室2厅2卫1厨建筑面积148.00平米

待定

4室2厅1厨2卫

待定

暂无

暂无

148 m²

暂无

未知

户型品鉴

各个空间户型方正,方便室内家具布置;卫生间没有对外窗户,可通过加装排风机改善通风除湿;卫生间门朝向主要活动区域;。客厅、卧室、卫生间和厨房等主要功能间的尺寸以及比例适中,有利于采光和通风,居住起来舒适、方便;公摊高于15%且低于25%,符合住宅公摊正常范围。

合并户型1-合并户型1-2室2厅1卫1厨建筑面积117.00平米

待定

2室2厅1厨1卫

待定

暂无

暂无

117 m²

暂无

未知

户型品鉴

暂无

公寓A1-1室1厅1卫1厨建筑面积51.27平米

待定

1室1厅1厨1卫

待定

暂无

暂无

51.27 m²

暂无

未知

户型品鉴

各个空间户型方正,后期空间利用率高;南北不通透的户型,后期居住时常开门通风换气即可;卫生间门朝向主要活动区域;卧室厨卫等各个功能区的面积大小都比较合理,居住体验便利,整体舒适度高;公摊高于25%。

我要咨询

一键领取最新楼盘信息!

订阅后金牌置业顾问将主动致电联系您并提供专业咨询服务,来电时您的真实号码将被隐藏

图片验证码