B户型-3室2厅1卫1厨建筑面积117.87平米

待定

3室2厅1厨1卫

待定

暂无

暂无

117.87 m²

暂无

少量

户型品鉴

各个空间户型方正,方便室内家具布置;户型不是南北通透,整体空间无穿堂风;入户门进厨房需要穿过客厅;从卧室进卫生间需要穿过餐厅或客厅;各个功能区的尺寸比例规范,布局合理,能很好地满足日常功能需求,整体空间开阔,采光充足,居住舒适度好;公摊高于15%且低于25%,符合住宅公摊正常范围。

A户型-3室2厅2卫1厨建筑面积122.39平米

待定

3室2厅1厨2卫

待定

暂无

暂无

122.39 m²

暂无

少量

户型品鉴

各个空间户型方正,方便室内家具布置;户型不是南北通透,后期装修时可以考虑加装纱门改善通风;入户门进厨房需要穿过客厅;卧室进卫生间需要穿过餐厅或客厅;客厅、卧室、卫生间和厨房等主要功能间的尺寸以及比例适中,有利于采光和通风,居住起来舒适、方便;公摊高于15%且低于25%,符合住宅公摊正常范围。

G户型-2室2厅1卫1厨建筑面积88.53平米

待定

2室2厅1厨1卫

待定

暂无

暂无

88.53 m²

暂无

少量

户型品鉴

除主卧和客厅之外的其他空间不方正;户型不是南北通透,后期装修时可以考虑加装纱门改善通风;整个户型空间布局合理,做到了干湿分离、动静分离,方便后期生活;各个功能区的尺寸比例规范,布局合理,能很好地满足日常功能需求,整体空间开阔,采光充足,居住舒适度好;公摊高于15%且低于25%,符合住宅公摊正常范围。

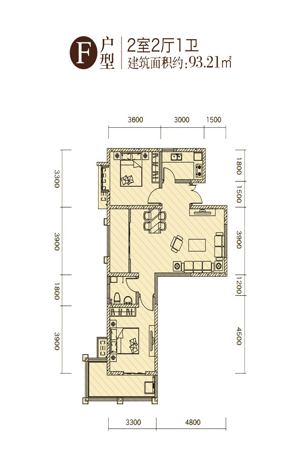
F户型-2室2厅1卫1厨建筑面积93.21平米

待定

2室2厅1厨1卫

待定

暂无

暂无

93.21 m²

暂无

少量

户型品鉴

主卧或客厅方正,其他空间不方正;南北不通透的户型,后期居住时常开门通风换气即可;卧室进卫生间需要穿过餐厅或客厅;客厅、卧室、卫生间和厨房等主要功能间的尺寸以及比例适中,有利于采光和通风,居住起来舒适、方便;公摊高于15%且低于25%,符合住宅公摊正常范围。

J户型-2室2厅1卫1厨建筑面积94.27平米

待定

2室2厅1厨1卫

待定

暂无

暂无

94.27 m²

暂无

少量

户型品鉴

各个空间户型方正,后期空间利用率高;户型不是南北通透,整体空间无穿堂风;卫生间门朝向主要活动区域,私密性一般;卧室厨卫等各个功能区的面积大小都比较合理,居住体验便利,整体舒适度高;公摊高于15%且低于25%,符合住宅公摊正常范围。

D户型-2室2厅1卫1厨建筑面积99.43平米

待定

2室2厅1厨1卫

待定

暂无

暂无

99.43 m²

暂无

少量

户型品鉴

各个空间户型方正,后期空间利用率高;南北不通透的户型,后期居住时常开门通风换气即可;厨房门朝向客厅,能加装门即可规避油烟对客厅的影响;卧室厨卫等各个功能区的面积大小都比较合理,居住体验便利,整体舒适度高;公摊高于15%且低于25%,符合住宅公摊正常范围。

C户型-3室2厅1卫1厨建筑面积98.01平米

待定

3室2厅1厨1卫

待定

暂无

暂无

98.01 m²

暂无

少量

户型品鉴

整体户型方正,活动区域开阔,居住舒适度高;户型不是南北通透,整体空间无穿堂风;厨房门朝向客厅,装修时要侧重考虑除油烟的措施;卧室厨卫等各个功能区的面积大小都比较合理,居住体验便利,整体舒适度高;公摊高于15%且低于25%,符合住宅公摊正常范围。

H户型-2室2厅1卫1厨建筑面积84.84平米

待定

2室2厅1厨1卫

待定

暂无

暂无

84.84 m²

暂无

少量

户型品鉴

各个空间户型方正,后期空间利用率高;全明户型,各部分空间均有窗,可保证整体空间采光和通风,居住舒适度好;卧室门朝向客厅或餐厅;各个功能区的尺寸比例规范,布局合理,能很好地满足日常功能需求,整体空间开阔,采光充足,居住舒适度好;公摊高于15%且低于25%,符合住宅公摊正常范围。

C户型-C户型-3室2厅1卫1厨建筑面积98.01平米

待定

3室2厅1厨1卫

待定

暂无

暂无

98.01 m²

暂无

少量

户型品鉴

暂无

E户型1-2室2厅1卫1厨建筑面积74.40平米

待定

2室2厅1厨1卫

待定

暂无

暂无

74.4 m²

暂无

少量

户型品鉴

各个空间户型方正,方便室内家具布置;全明户型,各部分空间均有窗,可保证整体空间采光和通风,居住舒适度好;居室布局合理,通风良好,动静分离,兼顾到了卧室和卫生间的私密性;客厅、卧室、卫生间和厨房等主要功能间的尺寸以及比例适中,有利于采光和通风,居住起来舒适、方便;公摊高于15%且低于25%,符合住宅公

我要咨询

一键领取最新楼盘信息!

订阅后金牌置业顾问将主动致电联系您并提供专业咨询服务,来电时您的真实号码将被隐藏

图片验证码