联排东边户一层-5室4厅5卫1厨建筑面积226.00平米

待定

5室4厅1厨5卫

待定

暂无

暂无

226 m²

暂无

未知

户型品鉴

各个空间户型方正,后期空间利用率高;全明户型,各部分空间均有窗,可保证整体空间采光和通风,居住舒适度好;卫生间门朝向主要活动区域;。各个功能区的尺寸比例规范,布局合理,能很好地满足日常功能需求,整体空间开阔,采光充足,居住舒适度好;公摊高于15%且低于25%,符合住宅公摊正常范围。

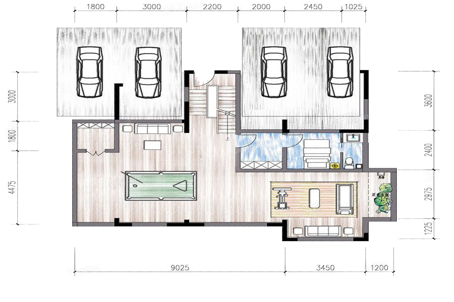
地下一层-7室4厅5卫1厨建筑面积343.00平米

待定

7室4厅1厨5卫

待定

暂无

暂无

343 m²

暂无

未知

户型品鉴

整体户型方正,活动区域开阔,居住舒适度高;整个空间全明通透,采光良好,同时利于居住空间通风;居室布局合理,通风良好,动静分离,兼顾到了卧室和卫生间的私密性;各个功能区的尺寸比例规范,布局合理,能很好地满足日常功能需求,整体空间开阔,采光充足,居住舒适度好;公摊高于15%且低于25%,符合住宅公摊正常

合院户型41.86平jpg-1室1厅1卫1厨建筑面积41.86平米

待定

1室1厅1厨1卫

待定

暂无

暂无

41.86 m²

暂无

少量

户型品鉴

各个空间户型方正,后期空间利用率高;整个空间全明通透,采光良好,同时利于居住空间通风;卧室作为休息区域,门朝向客厅或餐厅时,私密性一般;卫生间门朝向主要活动区域;。厨房门朝向客厅,装修时要侧重考虑除油烟的措施;客厅、卧室、卫生间和厨房等主要功能间的尺寸以及比例适中,有利于采光和通风,居住起来舒适、方

合院87.17平jpg-1室2厅1卫1厨建筑面积87.17平米

待定

1室2厅1厨1卫

待定

暂无

暂无

87.17 m²

暂无

少量

户型品鉴

各个空间户型方正,后期空间利用率高;全明户型,各部分空间均有窗,可保证整体空间采光和通风,居住舒适度好;厨房门朝向客厅,装修时要侧重考虑除油烟的措施;厨房空间不算开阔,日常使用功能可以满足,后期要减少不必要的器具装配,避免空间更加局促;公摊高于25%。

合院95.04平jpg-1室2厅1卫1厨建筑面积95.04平米

待定

1室2厅1厨1卫

待定

暂无

暂无

95.04 m²

暂无

少量

户型品鉴

整体户型方正,活动区域开阔,居住舒适度高;全明户型,各部分空间均有窗,可保证整体空间采光和通风,居住舒适度好;卫生间门朝向主要活动区域;厨房门朝向客厅,能加装门即可规避油烟对客厅的影响;厨房空间不算开阔,可通过橱柜的合理布局改善空间;公摊高于25%。

洋房122平-3室2厅2卫1厨建筑面积122.00平米

待定

3室2厅1厨2卫

待定

暂无

暂无

122 m²

暂无

未知

户型品鉴

各个空间户型方正,后期空间利用率高;整个空间全明通透,采光良好,同时利于居住空间通风;卧室作为休息区域,门朝向客厅或餐厅时,私密性一般;卫生间门朝向主要活动区域;。客厅、卧室、卫生间和厨房等主要功能间的尺寸以及比例适中,有利于采光和通风,居住起来舒适、方便;公摊高于25%。

洋房146平-3室2厅3卫1厨建筑面积146.00平米

待定

3室2厅1厨3卫

待定

暂无

暂无

146 m²

暂无

未知

户型品鉴

整体户型方正,活动区域开阔,居住舒适度高;全明通透户型,居住舒适度较高,整个空间采光充足,利于后期居住;卫生间门朝向主要活动区域;。厨房门朝向客厅,装修时要侧重考虑除油烟的措施;各个功能区的尺寸比例规范,布局合理,能很好地满足日常功能需求,整体空间开阔,采光充足,居住舒适度好;公摊高于25%。

联排中户二层-4室3厅5卫1厨建筑面积165.02平米

待定

4室3厅1厨5卫

待定

暂无

暂无

165.02 m²

暂无

少量

户型品鉴

各个空间户型方正,后期空间利用率高;卫生间没有对外窗户,可通过加装排风机改善通风除湿;整个户型空间布局合理,做到了干湿分离、动静分离,方便后期生活;各个功能区的尺寸比例规范,布局合理,能很好地满足日常功能需求,整体空间开阔,采光充足,居住舒适度好;公摊高于15%且低于25%,符合住宅公摊正常范围。

合院户型44.61平jpg-1室1厅1卫1厨建筑面积44.61平米

待定

1室1厅1厨1卫

待定

暂无

暂无

44.61 m²

暂无

少量

户型品鉴

整体户型方正,活动区域开阔,居住舒适度高;整个空间全明通透,采光良好,同时利于居住空间通风;卧室门朝向客厅或餐厅;卫生间门朝向主要活动区域,私密性一般;厨房偏小,基本满足日常使用需求;公摊高于25%。

公寓A2户型-1室2厅1卫1厨建筑面积62.56平米

待定

1室2厅1厨1卫

待定

暂无

暂无

62.56 m²

暂无

未知

户型品鉴

各个空间户型方正,后期空间利用率高;全明通透户型,居住舒适度较高,整个空间采光充足,利于后期居住;整个户型空间布局合理,做到了干湿分离、动静分离,方便后期生活;卧室厨卫等各个功能区的面积大小都比较合理,居住体验便利,整体舒适度高;公摊高于15%且低于25%,符合住宅公摊正常范围。

公寓A1户型-2室2厅1卫1厨建筑面积83.87平米

待定

2室2厅1厨1卫

待定

暂无

暂无

83.87 m²

暂无

未知

户型品鉴

各个空间户型方正,后期空间利用率高;整个空间全明通透,采光良好,同时利于居住空间通风;卧室进卫生间需要穿过餐厅或客厅;客厅、卧室、卫生间和厨房等主要功能间的尺寸以及比例适中,有利于采光和通风,居住起来舒适、方便;公摊高于15%且低于25%,符合住宅公摊正常范围。

公寓A3户型-2室2厅1卫1厨建筑面积88.02平米

待定

2室2厅1厨1卫

待定

暂无

暂无

88.02 m²

暂无

未知

户型品鉴

各个空间户型方正,方便室内家具布置;南北不通透的户型,后期居住时常开门通风换气即可;整个户型空间布局合理,做到了干湿分离、动静分离,方便后期生活;卧室厨卫等各个功能区的面积大小都比较合理,居住体验便利,整体舒适度高;公摊高于15%且低于25%,符合住宅公摊正常范围。

合院户型44.87平jpg-1室1厅1卫1厨建筑面积44.87平米

待定

1室1厅1厨1卫

待定

暂无

暂无

44.87 m²

暂无

少量

户型品鉴

整体户型方正,活动区域开阔,居住舒适度高;比较重要的空间无对外窗户,室内采光和通风欠佳;卧室门朝向客厅或餐厅;卫生间门朝向主要活动区域;厨房门朝向客厅,能加装门即可规避油烟对客厅的影响;厨房偏小,基本满足日常使用需求;公摊高于25%。

公寓A3'户型-2室2厅1卫1厨建筑面积94.86平米

待定

2室2厅1厨1卫

待定

暂无

暂无

94.86 m²

暂无

未知

户型品鉴

整体户型方正,活动区域开阔,居住舒适度高;客厅、主卧非南向或东向;户型不是南北通透,整体空间无穿堂风;整体空间布局合理,能够保证动静分离和居室通风,方便使用;卧室厨卫等各个功能区的面积大小都比较合理,居住体验便利,整体舒适度高;公摊高于15%且低于25%,符合住宅公摊正常范围。

我要咨询

一键领取最新楼盘信息!

订阅后金牌置业顾问将主动致电联系您并提供专业咨询服务,来电时您的真实号码将被隐藏

图片验证码