参考价格(均价/总价)
12500元 / 65万
建面
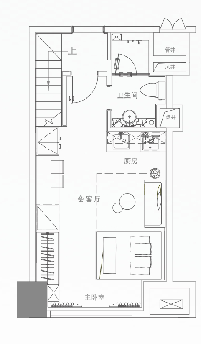
52.44㎡
预约看房
获取专属服务
开盘
暂无
户型
一居室(1)、 二居室(1)
预售许可证
暂无
陕西省西安市灞桥区浐灞二路与北辰东路交汇向东200米
主力户型 (2) 查看更多
楼盘详情 查看更多
陕西新天力置业有限公司
暂无
暂无
公寓(40年)
32724 m²
62
370
为您推荐 查看更多
辰宇世纪城 在售
写字楼 小户型 成熟商圈
灞桥区 57.45-125.2㎡
价格待定
富华博派时代 在售
公寓 车位充足 不限购
雁塔区 52-54㎡
8800 元/平起
万科棉花公寓 待售
公寓 学区房 不限购
长安区 93㎡
9600 元/平起
荣民·宫园美寓 在售
公寓 小户型 地铁沿线
新城区 45-97.83㎡
11000 元/平起
金品会展世界城 在售
公寓 小户型 成熟商圈
雁塔区 33.65-50.2㎡
11000 元/平起
大明宫馆 在售
公寓 生态宜居 成熟商圈
未央区-大明宫街道 45.58-79.7㎡
15000 元/平起
朗基幸福乐城 在售
住宅 不限购 装修房
新城区-胡家庙街道 41-52㎡
7500 元/平起
钜益100 在售
公寓 小户型 不限购
未央区-大明宫街道 38-77㎡
10000 元/平起
糖果house 在售
住宅 小户型 生态宜居
雁塔区 40-103㎡
13500 元/平起
欧亚国际 在售
公寓 配套齐全 生态宜居
未央区 50.64-114㎡
14000 元/平起
页面中所涉及的面积,如无特殊说明均为建筑面积,所涉及装修情况,标准以合同为准,页面中的图片仅供参考,请以售楼处实际情况为准。
领取优惠
一键锁定"签约99折送车位"购房优惠!
成功领取活动优惠
您已成功领取了该活动优惠,我们会尽快联系您
我要咨询
一键领取最新楼盘信息!
订阅后金牌置业顾问将主动致电联系您并提供专业咨询服务,来电时您的真实号码将被隐藏
图片验证码