徐州_万科尚都会

售罄
商住 大户型 小户型 车位充足 装修房 综合体 投资盘 品牌地产

参考价格(均价/总价)

13000元 / 115万

建面

89-138㎡

预约看房

获取专属服务

开盘

暂无

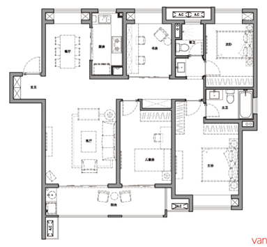
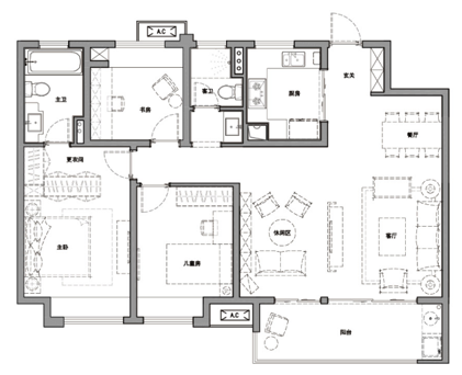
户型

一居室(1)、 三居室(3)、 四居室(1)

预售许可证

暂无

江苏省徐州市云龙区江苏省-徐州市-云龙区

变价提醒我
开盘通知我

楼盘动态 (1) 查看更多

  • 2018-6-15

    万科尚都会住宅均已开盘,均价13000元/㎡,目前在售商业

订阅销控和动态

楼盘详情 查看更多

开发商

徐州万汇置业有限公司

最新开盘

暂无

交房时间

暂无

产权年限

商住(70年)

占地面积

54000 m²

地上车位

暂无

地下车位

1146

咨询楼盘更多信息

专业顾问

马小良
专属一对一服务

周边配套 查看更多

  • 公交
  • 地铁
  • 学校
  • 医院
  • 银行
  • 购物

咨询周边配套及规划
免责声明

页面中所涉及的面积,如无特殊说明均为建筑面积,所涉及装修情况,标准以合同为准,页面中的图片仅供参考,请以售楼处实际情况为准。

意向区域

不限

总价预期

不限

我要咨询

一键领取最新楼盘信息!

订阅后金牌置业顾问将主动致电联系您并提供专业咨询服务,来电时您的真实号码将被隐藏

图片验证码