2座03-11户型-2座03-11户型-1室1厅1卫1厨建筑面积53.72平米

待定

1室1厅1厨1卫

待定

暂无

暂无

53.72 m²

暂无

少量

户型品鉴

暂无

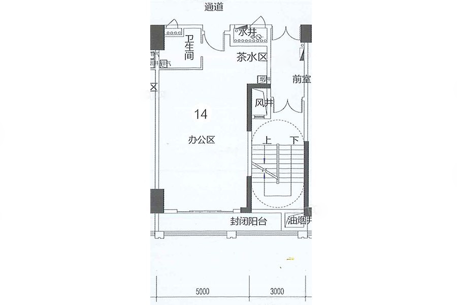
2座14户型-1室1厅1卫1厨建筑面积70.64平米

待定

1室1厅1厨1卫

待定

暂无

暂无

70.64 m²

暂无

少量

户型品鉴

整体户型方正,活动区域开阔,居住舒适度高;全明通透户型,居住舒适度较高,整个空间采光充足,利于后期居住;整体空间布局合理,能够保证动静分离和居室通风,方便使用;客厅、卧室、卫生间和厨房等主要功能间的尺寸以及比例适中,有利于采光和通风,居住起来舒适、方便;公摊高于15%且低于25%,符合住宅公摊正常范

A型二层户型-1室1厅2卫1厨建筑面积112.00平米

待定

1室1厅1厨2卫

待定

暂无

暂无

112 m²

暂无

少量

户型品鉴

各个空间户型方正,方便室内家具布置;全明通透户型,居住舒适度较高,整个空间采光充足,利于后期居住;整体空间布局合理,能够保证动静分离和居室通风,方便使用;卧室厨卫等各个功能区的面积大小都比较合理,居住体验便利,整体舒适度高;公摊高于15%且低于25%,符合住宅公摊正常范围。

2座12、13户型-1室1厅1卫1厨建筑面积106.36平米

待定

1室1厅1厨1卫

待定

暂无

暂无

106.36 m²

暂无

少量

户型品鉴

各个空间户型方正,后期空间利用率高;全明通透户型,居住舒适度较高,整个空间采光充足,利于后期居住;居室布局合理,通风良好,动静分离,兼顾到了卧室和卫生间的私密性;卧室厨卫等各个功能区的面积大小都比较合理,居住体验便利,整体舒适度高;公摊高于15%且低于25%,符合住宅公摊正常范围。

B型二层户型-1室1厅3卫1厨建筑面积146.00平米

待定

1室1厅1厨3卫

待定

暂无

暂无

146 m²

暂无

少量

户型品鉴

整体户型方正,活动区域开阔,居住舒适度高;整个空间全明通透,采光良好,同时利于居住空间通风;整体空间布局合理,能够保证动静分离和居室通风,方便使用;卧室厨卫等各个功能区的面积大小都比较合理,居住体验便利,整体舒适度高;公摊高于15%且低于25%,符合住宅公摊正常范围。

2座18、19户型-1室1厅1卫1厨建筑面积53.80平米

待定

1室1厅1厨1卫

待定

暂无

暂无

53.8 m²

暂无

少量

户型品鉴

整体户型方正,活动区域开阔,居住舒适度高;全明通透户型,居住舒适度较高,整个空间采光充足,利于后期居住;整体空间布局合理,能够保证动静分离和居室通风,方便使用;各个功能区的尺寸比例规范,布局合理,能很好地满足日常功能需求,整体空间开阔,采光充足,居住舒适度好;公摊高于15%且低于25%,符合住宅公摊

2座02、20户型-1室1厅1卫1厨建筑面积53.26平米

待定

1室1厅1厨1卫

待定

暂无

暂无

53.26 m²

暂无

少量

户型品鉴

各个空间户型方正,后期空间利用率高;整个空间全明通透,采光良好,同时利于居住空间通风;居室布局合理,通风良好,动静分离,兼顾到了卧室和卫生间的私密性;客厅、卧室、卫生间和厨房等主要功能间的尺寸以及比例适中,有利于采光和通风,居住起来舒适、方便;公摊高于15%且低于25%,符合住宅公摊正常范围。

3座18、19户型-1室1厅1卫0厨建筑面积53.97平米

待定

1室1厅0厨1卫

待定

暂无

暂无

53.97 m²

暂无

少量

户型品鉴

各个空间户型方正,方便室内家具布置;全明户型,各部分空间均有窗,可保证整体空间采光和通风,居住舒适度好;整体空间布局合理,能够保证动静分离和居室通风,方便使用;卧室厨卫等各个功能区的面积大小都比较合理,居住体验便利,整体舒适度高;公摊高于15%且低于25%,符合住宅公摊正常范围。

3座14户型-1室1厅1卫0厨建筑面积70.87平米

待定

1室1厅0厨1卫

待定

暂无

暂无

70.87 m²

暂无

少量

户型品鉴

整体户型方正,活动区域开阔,居住舒适度高;整个空间全明通透,采光良好,同时利于居住空间通风;整体空间布局合理,能够保证动静分离和居室通风,方便使用;各个功能区的尺寸比例规范,布局合理,能很好地满足日常功能需求,整体空间开阔,采光充足,居住舒适度好;公摊高于15%且低于25%,符合住宅公摊正常范围。

2座15-17户型-1室1厅1卫1厨建筑面积53.72平米

待定

1室1厅1厨1卫

待定

暂无

暂无

53.72 m²

暂无

少量

户型品鉴

各个空间户型方正,方便室内家具布置;全明通透户型,居住舒适度较高,整个空间采光充足,利于后期居住;整体空间布局合理,能够保证动静分离和居室通风,方便使用;各个功能区的尺寸比例规范,布局合理,能很好地满足日常功能需求,整体空间开阔,采光充足,居住舒适度好;公摊高于15%且低于25%,符合住宅公摊正常范

3座12、13户型-1室1厅1卫1厨建筑面积106.71平米

待定

1室1厅1厨1卫

待定

暂无

暂无

106.71 m²

暂无

少量

户型品鉴

各个空间户型方正,方便室内家具布置;全明通透户型,居住舒适度较高,整个空间采光充足,利于后期居住;整个户型空间布局合理,做到了干湿分离、动静分离,方便后期生活;卧室厨卫等各个功能区的面积大小都比较合理,居住体验便利,整体舒适度高;公摊高于15%且低于25%,符合住宅公摊正常范围。

3座03-11、15-17户型-1室1厅1卫0厨建筑面积53.89平米

待定

1室1厅0厨1卫

待定

暂无

暂无

53.89 m²

暂无

少量

户型品鉴

各个空间户型方正,后期空间利用率高;整个空间全明通透,采光良好,同时利于居住空间通风;整个户型空间布局合理,做到了干湿分离、动静分离,方便后期生活;各个功能区的尺寸比例规范,布局合理,能很好地满足日常功能需求,整体空间开阔,采光充足,居住舒适度好;公摊高于15%且低于25%,符合住宅公摊正常范围。

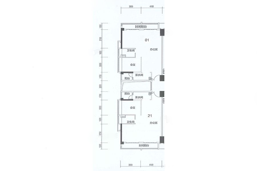
2座01、21户型-1室1厅1卫1厨建筑面积105.91平米

待定

1室1厅1厨1卫

待定

暂无

暂无

105.91 m²

暂无

少量

户型品鉴

整体户型方正,活动区域开阔,居住舒适度高;全明户型,各部分空间均有窗,可保证整体空间采光和通风,居住舒适度好;整体空间布局合理,能够保证动静分离和居室通风,方便使用;客厅、卧室、卫生间和厨房等主要功能间的尺寸以及比例适中,有利于采光和通风,居住起来舒适、方便;公摊高于15%且低于25%,符合住宅公摊

3座01、21户型-1室1厅1卫1厨建筑面积106.25平米

待定

1室1厅1厨1卫

待定

暂无

暂无

106.25 m²

暂无

少量

户型品鉴

各个空间户型方正,后期空间利用率高;全明通透户型,居住舒适度较高,整个空间采光充足,利于后期居住;居室布局合理,通风良好,动静分离,兼顾到了卧室和卫生间的私密性;客厅、卧室、卫生间和厨房等主要功能间的尺寸以及比例适中,有利于采光和通风,居住起来舒适、方便;公摊高于15%且低于25%,符合住宅公摊正常

3座02、20户型-1室1厅1卫0厨建筑面积53.44平米

待定

1室1厅0厨1卫

待定

暂无

暂无

53.44 m²

暂无

少量

户型品鉴

各个空间户型方正,后期空间利用率高;整个空间全明通透,采光良好,同时利于居住空间通风;整体空间布局合理,能够保证动静分离和居室通风,方便使用;卧室厨卫等各个功能区的面积大小都比较合理,居住体验便利,整体舒适度高;公摊高于15%且低于25%,符合住宅公摊正常范围。

C型二层户型-2室2厅4卫1厨建筑面积182.00平米

待定

2室2厅1厨4卫

待定

暂无

暂无

182 m²

暂无

少量

户型品鉴

整体户型方正,活动区域开阔,居住舒适度高;全明户型,各部分空间均有窗,可保证整体空间采光和通风,居住舒适度好;整体空间布局合理,能够保证动静分离和居室通风,方便使用;客厅、卧室、卫生间和厨房等主要功能间的尺寸以及比例适中,有利于采光和通风,居住起来舒适、方便;公摊高于15%且低于25%,符合住宅公摊

我要咨询

一键领取最新楼盘信息!

订阅后金牌置业顾问将主动致电联系您并提供专业咨询服务,来电时您的真实号码将被隐藏

图片验证码