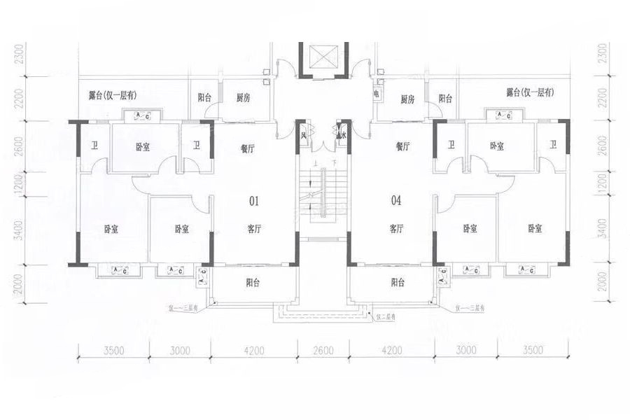
64栋01、04户型-3室2厅2卫1厨建筑面积122.35平米

待定

3室2厅1厨2卫

待定

暂无

暂无

122.35 m²

暂无

少量

户型品鉴

各个空间户型方正,后期空间利用率高;全明户型,各部分空间均有窗,可保证整体空间采光和通风,居住舒适度好;整个户型空间布局合理,做到了干湿分离、动静分离,方便后期生活;各个功能区的尺寸比例规范,布局合理,能很好地满足日常功能需求,整体空间开阔,采光充足,居住舒适度好;公摊高于15%且低于25%,符合住

78幢02、03户型-3室2厅2卫1厨建筑面积102.04平米

待定

3室2厅1厨2卫

待定

暂无

暂无

102.04 m²

暂无

少量

户型品鉴

各个空间户型方正,后期空间利用率高;整个空间全明通透,采光良好,同时利于居住空间通风;整个户型空间布局合理,做到了干湿分离、动静分离,方便后期生活;各个功能区的尺寸比例规范,布局合理,能很好地满足日常功能需求,整体空间开阔,采光充足,居住舒适度好;公摊高于15%且低于25%,符合住宅公摊正常范围。

78幢01、04户型-3室2厅2卫1厨建筑面积109.55平米

待定

3室2厅1厨2卫

待定

暂无

暂无

109.55 m²

暂无

少量

户型品鉴

各个空间户型方正,方便室内家具布置;全明通透户型,居住舒适度较高,整个空间采光充足,利于后期居住;整体空间布局合理,能够保证动静分离和居室通风,方便使用;客厅、卧室、卫生间和厨房等主要功能间的尺寸以及比例适中,有利于采光和通风,居住起来舒适、方便;公摊高于15%且低于25%,符合住宅公摊正常范围。

66幢01、04户型-3室2厅2卫1厨建筑面积122.55平米

待定

3室2厅1厨2卫

待定

暂无

暂无

122.55 m²

暂无

少量

户型品鉴

各个空间户型方正,方便室内家具布置;整个空间全明通透,采光良好,同时利于居住空间通风;居室布局合理,通风良好,动静分离,兼顾到了卧室和卫生间的私密性;各个功能区的尺寸比例规范,布局合理,能很好地满足日常功能需求,整体空间开阔,采光充足,居住舒适度好;公摊高于15%且低于25%,符合住宅公摊正常范围。

我要咨询

一键领取最新楼盘信息!

订阅后金牌置业顾问将主动致电联系您并提供专业咨询服务,来电时您的真实号码将被隐藏

图片验证码