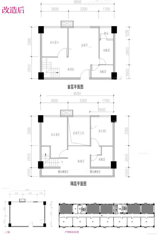
户型名称: A户型-3室2厅0卫0厨建筑面积67.00平米
参考均价: 待定
户型: 3室2厅0厨0卫
参考总价: 待定
装修情况: 暂无
梯户情况: 暂无
建筑面积: 67 m²
赠送面积: 暂无
户型余量: 未知
户型品鉴
暂无
所属楼盘
瑞泉生活广场 待售
写字楼 低总价 低单价
温江区 67㎡
8500 元/平
我要咨询
一键领取最新楼盘信息!
订阅后金牌置业顾问将主动致电联系您并提供专业咨询服务,来电时您的真实号码将被隐藏
图片验证码